恵比寿イーストスクエア 5階
物件概要
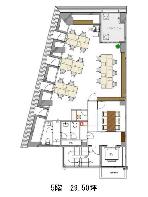
恵比寿イーストスクエアのテナント募集中区画
| 階数 | 面積 | 賃料(共益費含む) | 保証金 | 入居可能日 | 検討リスト | 詳細 |
|---|---|---|---|---|---|---|
| 5 | 29.49坪 | 1,070,487円/月(36,300円/坪) | 291万円 | 即 |
…新着物件
アクセス
恵比寿イーストスクエアの物件情報
恵比寿イーストスクエア(渋谷区恵比寿)は恵比寿駅(東口)から徒歩7分の賃貸オフィスです。1992年竣工、地上6階地下1階建SRC造のビルです。基壇部は白、上層部はブラウンの外壁で特徴的な外観をしています。貸室は10坪台~40坪台と様々なものがそろいます。店舗(飲食可)・事務所としての利用が可能でビジネスチャンスが広がるでしょう。2023年にリニューアルが済み更に使い勝手のよいオフィスになるでしょう。間取りは台形ですが、柱が中央に無いため配置がしやすい形状をしています。EV・駐車場・個別空調があります。恵比寿イーストスクエアは恵比寿駅(東口)の他に広尾駅(2番出口)徒歩14分で利用も可能です。

