3階は現在募集がありません
サウスコラム小林 3階
物件概要
サウスコラム小林のテナント募集中区画
現在、空室がございません。
サウスコラム小林のアクセス
サウスコラム小林の物件情報
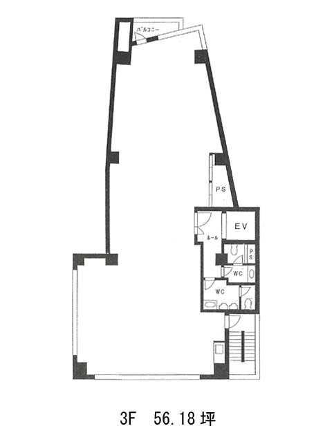
サウスコラム小林(渋谷区恵比寿南)は恵比寿駅(3番出口)から徒歩1分の賃貸オフィスです。1993年竣工、地上10階建て、新耐震基準を満たす鉄骨鉄筋造です。駒沢通りに面して立地し、黒い壁面とミラーガラスがスリムでスタイリッシュな外観です。1階で営業中の飲食店が来訪時の目印になるでしょう。基準階面積は約56坪。室内は奥行きのあるやや特殊な形ですが、柱が無く、レイアウトを遮る凹凸は殆どありません。当物件にはエレベーターが1基、個別空調、OAフロア、男女別トイレなど、仕事の快適性を引き上げる設備が備えられています。都内主要エリアへ好アクセスであることに加え、ビルの近くには郵便局や銀行支店が複数立地していますので、事務作業等もスムーズに行えます。サウスコラム小林は恵比寿駅(3番出口)の他に代官山駅(東口)徒歩9分、中目黒駅(出口)徒歩14分で利用も可能です。

