8階は現在募集がありません
いちご広尾ビル 8階
物件概要
いちご広尾ビルのテナント募集中区画
現在、空室がございません。
いちご広尾ビルのアクセス
いちご広尾ビルの物件情報
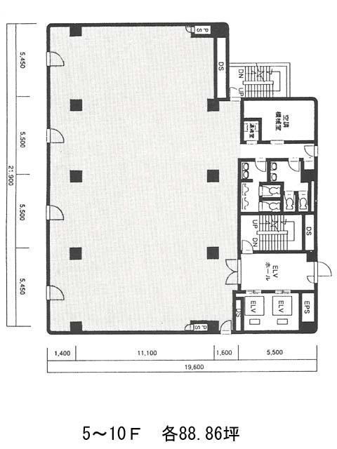
いちご広尾ビル(渋谷区広尾)は広尾駅(2番出口)から徒歩6分の賃貸オフィスです。1990年竣工、地上10階地下1階建のビルです。白い壁面に横長の窓ガラスが並び、シンプルな外観をしています。貸室はすっきりとした長方形で使い勝手が良いでしょう。フロアの一部に水まわり等の共用部が集中しております。EV2基・非常階段2箇所・駐車場・機械警備・据え置き型の個別空調・OAフロア・貸室外の男女別トイレといった充実の設備仕様をしています。テナントは60~80坪台で、中規模の事務所をお探しの方に良いでしょう。いちご広尾ビルは広尾駅(2番出口)の他に恵比寿駅(東口)徒歩15分で利用も可能です。

