HACO JINGUMAEのテナント募集中区画
| 階数 | 面積 | 賃料(共益費含む) | 保証金 | 入居可能日 | 検討リスト | 詳細 |
|---|---|---|---|---|---|---|
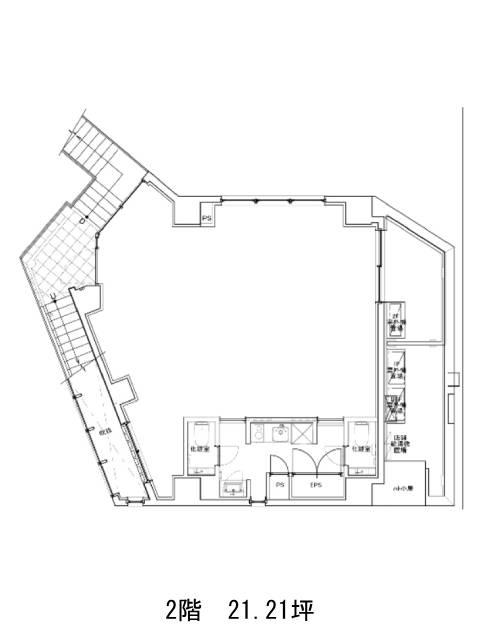
| B1-1 | 55.18坪 | 1,820,940円/月(33,000円/坪) | 1,655万円 | 即 | ||
| 3-4 | 31.56坪 | 1,006,764円/月(31,900円/坪) | 応相談 | 即 |
…新着物件
アクセス
HACO JINGUMAEの物件情報
HACO JINGUMAE(渋谷区神宮前)は北参道駅(2番出口)から徒歩9分の賃貸オフィスです。神宮前エリアの閑静な街並みに調和する、2025年1月竣工のオフィスビル。地上4階・地下1階建ての鉄筋コンクリート造で、延床面積は約137坪。店舗やショールーム、オフィスなど多様な用途に対応可能です。
建物は大きな窓面とバルコニーを備え、自然光を取り入れた明るく開放的な空間設計が特徴。空調は個別方式、2階以上はOAフロア仕様となっており、快適な執務環境が整っています。エレベーターは設置されていませんが、階段での移動が可能です。セキュリティは機械警備を採用し、安心の体制が整っています。
周辺にはコンビニエンスストアや郵便局、ミニスーパーマーケットなどの利便施設が充実しており、日常の業務や来訪者対応にも便利な環境が整っています。また、原宿外苑緑道が徒歩圏内にあり、緑豊かな環境も魅力の一つです。
このような立地と設備を備えた当ビルは、クリエイティブ系企業やデザインスタジオ、ショールーム展開を検討する企業にとって、魅力的な選択肢となるでしょう。HACO JINGUMAEは北参道駅(2番出口)の他に明治神宮前駅(出口)徒歩11分、外苑前駅(3番出口)徒歩12分で利用も可能です。

