5階は現在募集がありません
3フロア募集区画あり

エスラ原宿ビル 5階

前の写真 次の写真

物件概要

物件番号

170-00054-30

物件名

エスラ原宿ビル

所在地

面積

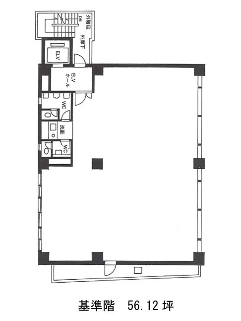
56.12坪

賃料(共益費含)


入居日

募集終了

保証金

礼金

更新料

償却費

竣工

1984年11月

構造

SRC

規模

地上8階

トイレ

男女別

空調

個別空調

エレベーター

セキュリティ

駐車場

耐震

新耐震基準

基準階天井高

3050mm

空室延床面積

169.23坪

最寄駅

情報更新日

2026/01/05

エスラ原宿ビルのテナント募集中区画

階数 面積 賃料(共益費含む) 保証金 入居可能日 検討リスト 詳細
2 54.63坪 応相談(応相談) 応相談 2026年2月上旬
3 57.30坪 応相談(応相談) 応相談
4 57.30坪 応相談(応相談) 応相談
…新着物件

アクセス

エスラ原宿ビルの物件情報

エスラ原宿ビル(渋谷区神宮前)は明治神宮前駅(出口1)から徒歩6分の賃貸オフィスです。
明治通り沿い、地上8階建ての賃貸オフィスビルです。白を基調とした外観と大きな窓面が特徴で、自然光を取り入れた明るい執務空間を提供します。各フロアはワンフロア・ワンテナント仕様となっており、プライバシー性とレイアウトの自由度が高く、企業の多様なニーズに応えられる設計です。
設備面では、個別空調や男女別トイレ、OAフロアなど、快適なオフィス環境をサポートする機能が整っています。エレベーターも1基設置されており、日常の業務における利便性も確保されています。周辺にはコンビニエンスストアや飲食店、金融機関、郵便局などの生活利便施設が充実しており、ビジネス拠点としての魅力を高めています。
原宿駅や明治神宮前駅からのアクセスも良好で、交通利便性と落ち着いた環境を兼ね備えたオフィスビルです。
エスラ原宿ビルは明治神宮前駅(出口1)の他に原宿駅(竹下口)徒歩8分、北参道駅(2番出口)徒歩10分で利用も可能です。

近隣のエリア・駅から探す