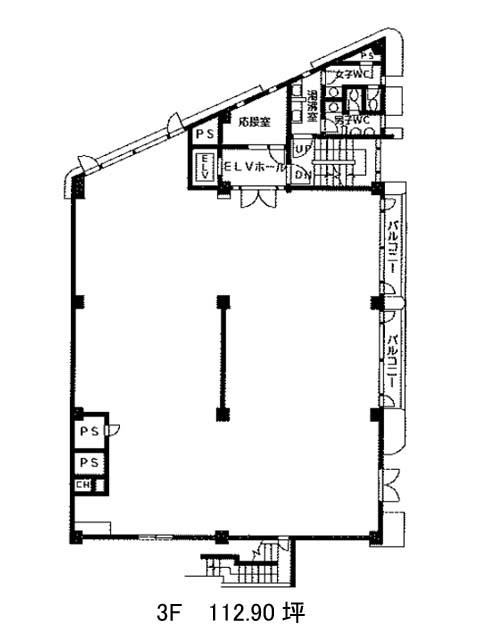
3階は現在募集がありません
ハニービル青山 3階
物件概要
ハニービル青山のテナント募集中区画
現在、空室がございません。
ハニービル青山のアクセス
ハニービル青山の物件情報
ハニービル青山(渋谷区神宮前)は外苑前駅(3番出口)から徒歩8分の賃貸オフィスです。外苑西通り(キラー通り)沿いに佇む「ハニービル青山」は、1969年竣工の地上8階・地下3階建ての賃貸オフィスビルです。鉄骨鉄筋コンクリート造で、耐震補強工事も行われており、長く利用されてきた物件としてしっかりとした管理体制が整っています。
白を基調にした外観にオレンジのラインが映えるファサードは、通行人の目を引くデザイン。シンプルながらも洗練された印象を与え、視認性の高いビジュアルが特徴です。エントランスや共用部も清潔感があり、ビル全体として落ち着いた雰囲気を持っています。
各フロアはワンフロア・ワンテナント仕様で、個別空調やOAフロアを完備。給湯室や男女別トイレは貸室外に配置されており、執務スペースを広く活用できます。エレベーター1基を備え、セキュリティは機械警備に対応しており、24時間の利用も可能です。
周辺にはコンビニエンスストアやカフェ、郵便局などの利便施設が揃っており、日常業務のサポート体制も充実。バス停も近く、渋谷・原宿・表参道方面へのアクセスにも恵まれた立地です。デザイン性と実用性を兼ね備えた落ち着きのあるオフィスを求める企業に適した物件です。ハニービル青山は外苑前駅(3番出口)の他に表参道駅(A2番出口)徒歩11分、明治神宮前駅(出口1)徒歩12分で利用も可能です。

