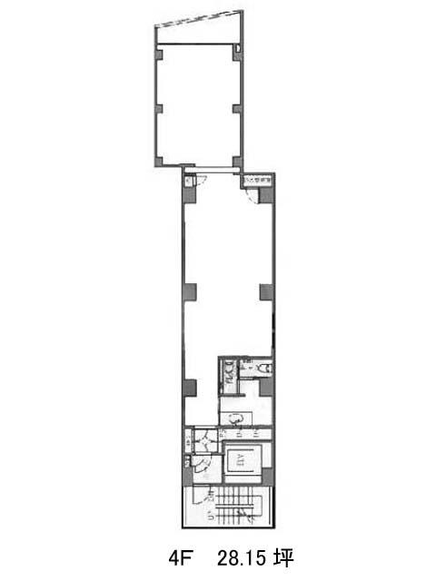
JLBグランエクリュ四谷のテナント募集中区画
| 階数 | 面積 | 賃料(共益費含む) | 保証金 | 入居可能日 | 検討リスト | 詳細 |
|---|---|---|---|---|---|---|
| 6 | 28.15坪 | 770,000円/月(27,354円/坪) | 240万円 | 即 |
…新着物件
JLBグランエクリュ四谷のアクセス
JLBグランエクリュ四谷の物件情報
JLBグランエクリュ四谷(新宿区四谷)は四谷三丁目駅(3番出口)から徒歩5分の賃貸オフィスです。JLBグランエクリュ四谷は四谷三丁目駅(3番出口)の他に四ツ谷駅(2番出口)徒歩7分、曙橋駅(A1番出口)徒歩10分で利用も可能です。

