JLBグランエクリュ四谷 6階
物件概要
物件番号
208-00330-1物件名
JLBグランエクリュ四谷所在地
- 東京都新宿区四谷2-11-15
- アクセスマップ
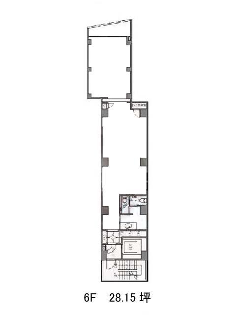
面積
28.15坪賃料(共益費含)
月額770,000円(27,354円/坪)
入居日
即保証金
2,400,069円礼金
1ケ月更新料
新1ケ月償却費
1ケ月竣工
2018年3月構造
SRC規模
地上8階トイレ
男女別空調
エレベーター
有セキュリティ
駐車場
無耐震
新耐震基準基準階天井高
空室延床面積
28.15坪情報更新日
2026/01/26JLBグランエクリュ四谷のテナント募集中区画
| 階数 | 面積 | 賃料(共益費含む) | 保証金 | 入居可能日 | 検討リスト | 詳細 |
|---|---|---|---|---|---|---|
| 6 | 28.15坪 | 770,000円/月(27,354円/坪) | 240万円 | 即 |
…新着物件
JLBグランエクリュ四谷のアクセス
JLBグランエクリュ四谷の物件情報
JLBグランエクリュ四谷(新宿区四谷)は四谷三丁目駅(3番出口)から徒歩5分の賃貸オフィスです。JLBグランエクリュ四谷は四谷三丁目駅(3番出口)の他に四ツ谷駅(2番出口)徒歩7分、曙橋駅(A1番出口)徒歩10分で利用も可能です。

