HELIOS市ヶ谷 5階
物件概要
物件番号
227-00045-30物件名
HELIOS市ヶ谷所在地
- 東京都新宿区住吉町1-8
- アクセスマップ
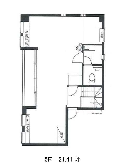
面積
21.41坪賃料(共益費含)
月額176,000円(8,221円/坪)
入居日
即保証金
480,055円礼金
1ケ月更新料
新1ケ月償却費
なし竣工
1986年1月構造
RC規模
地上5階/地下1階トイレ
男女共用空調
エレベーター
有セキュリティ
駐車場
無耐震
新耐震基準基準階天井高
空室延床面積
21.41坪情報更新日
2025/09/16HELIOS市ヶ谷のテナント募集中区画
| 階数 | 面積 | 賃料(共益費含む) | 保証金 | 入居可能日 | 検討リスト | 詳細 |
|---|---|---|---|---|---|---|
| 5 | 21.41坪 | 176,000円/月(8,221円/坪) | 48万円 | 即 |
…新着物件
アクセス
HELIOS市ヶ谷の物件情報
HELIOS市ヶ谷(新宿区住吉町)は曙橋駅(A1番出口)から徒歩2分の賃貸オフィスです。HELIOS市ヶ谷は曙橋駅(A1番出口)の他に四谷三丁目駅(出口)徒歩8分、若松河田駅(若松口)徒歩13分で利用も可能です。

