サトケイビルのテナント募集中区画
| 階数 | 面積 | 賃料(共益費含む) | 保証金 | 入居可能日 | 検討リスト | 詳細 |
|---|---|---|---|---|---|---|
| 1 | 30.65坪 | 910,305円/月(29,700円/坪) | 576万円 | 2026年4月上旬 |
…新着物件
アクセス
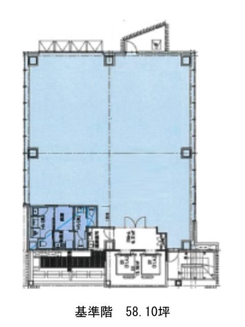
サトケイビルの物件情報
サトケイビル(千代田区岩本町)は岩本町駅(A4番出口)から徒歩4分の賃貸オフィスです。2021年竣工で地上9階建てのデザイン性のあるガラス張りの外観が特徴的なビルです。フリーアクセス床となっているので配線しやすく、耐震は新耐震基準に適合しています。大通りに面している窓は、足下に及ぶ大きな窓となっているため、室内は明るい状態になります。屋上はテラスとなっています。セキュリティは機械式警備。エレベーターは2基設置です。徒歩圏内にコンビニエンスストアやドラッグストアがございますので、利便性が高いです。サトケイビルは岩本町駅(A4番出口)の他に秋葉原駅(4番出口)徒歩4分、馬喰町駅(4番出口)徒歩9分で利用も可能です。

