7階は現在募集がありません
1フロア募集区画あり

サトケイビル 7階

前の写真 次の写真

物件概要

物件番号

383-00351-7

物件名

サトケイビル

所在地

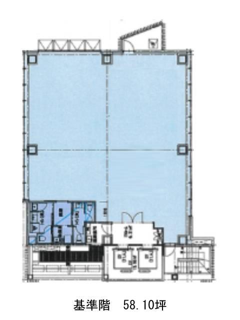
面積

58.10坪

賃料(共益費含)


入居日

募集終了

保証金

礼金

更新料

償却費

竣工

2022年2月

構造

S造

規模

地上9階

トイレ

男女別

空調

個別空調

エレベーター

セキュリティ

駐車場

耐震

新耐震基準

基準階天井高

2700mm

空室延床面積

30.65坪

最寄駅

情報更新日

2026/02/18

サトケイビルのテナント募集中区画

階数 面積 賃料(共益費含む) 保証金 入居可能日 検討リスト 詳細
1 30.65坪 910,305円/月(29,700円/坪) 576万円 2026年4月上旬
…新着物件

サトケイビルのアクセス

サトケイビルの物件情報

サトケイビル(千代田区岩本町)は岩本町駅(A4番出口)から徒歩4分の賃貸オフィスです。
2021年竣工で地上9階建てのデザイン性のあるガラス張りの外観が特徴的なビルです。フリーアクセス床となっているので配線しやすく、耐震は新耐震基準に適合しています。大通りに面している窓は、足下に及ぶ大きな窓となっているため、室内は明るい状態になります。屋上はテラスとなっています。セキュリティは機械式警備。エレベーターは2基設置です。徒歩圏内にコンビニエンスストアやドラッグストアがございますので、利便性が高いです。
サトケイビルは岩本町駅(A4番出口)の他に秋葉原駅(4番出口)徒歩4分、馬喰町駅(4番出口)徒歩9分で利用も可能です。

近隣のエリア・駅から探す