5階は現在募集がありません
ニューイワサキビル 5階
物件概要
ニューイワサキビルのテナント募集中区画
現在、空室がございません。
アクセス
ニューイワサキビルの物件情報
ニューイワサキビル(千代田区神田佐久間町)は浅草橋駅(西口)から徒歩5分の賃貸オフィスです。交差点に面した角地に立地し、全面ガラス張りの外観が印象的な物件。青みがかったファサードは街並みに映え、来訪者にも視認性の高い存在感を与えます。
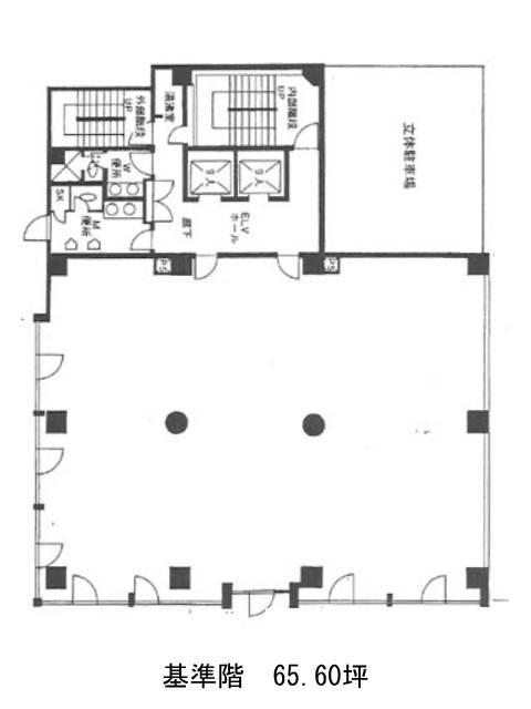
貸室は約65坪の整形区画で、中央に柱がある構造ですが、レイアウト次第で会議室や応接スペースの区切りにも活用できそう。水回りは共用部に設置されており、貸室を有効に使える点もポイントです。男女別トイレや給湯室が整っており、法令面や清潔感への配慮もうかがえます。エレベーターは2基設置。さらに立体駐車場が備わっており、車利用の来客対応や社用車管理にも便利です。
秋葉原エリアの中心からほど近く、周辺には飲食店や郵便局も揃っているため、日常業務もスムーズに。落ち着いた雰囲気の中で、働きやすい環境が整っています。ニューイワサキビルは浅草橋駅(西口)の他に秋葉原駅(1番出口)徒歩6分、岩本町駅(A4番出口)徒歩8分で利用も可能です。

