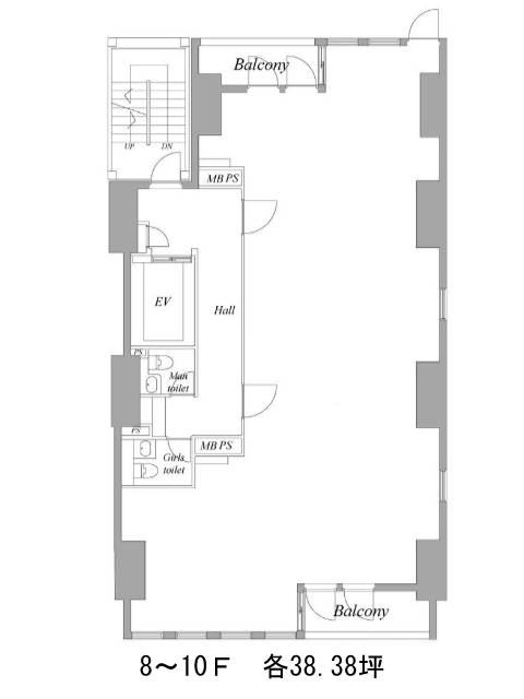
9階は現在募集がありません
秋葉原STNフロント 9階
物件概要
秋葉原STNフロントのテナント募集中区画
現在、空室がございません。
秋葉原STNフロントのアクセス
秋葉原STNフロントの物件情報
秋葉原STNフロント(千代田区神田佐久間町)は秋葉原駅(1番出口)から徒歩2分の賃貸オフィスです。秋葉原STNフロントは秋葉原駅(1番出口)の他に岩本町駅(A4番出口)徒歩5分、末広町駅(1番出口)徒歩10分で利用も可能です。

