リードシー東神田ビル 1階
物件概要
物件番号
421-00104-10物件名
リードシー東神田ビル所在地
- 東京都千代田区東神田2-10-15
- アクセスマップ
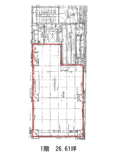
面積
26.61坪賃料(共益費含)
月額352,000円(13,228円/坪)
入居日
即保証金
1,920,071円礼金
1ケ月更新料
新1ケ月償却費
1ケ月竣工
1989年10月構造
SRC規模
地上9階トイレ
確認中空調
個別空調エレベーター
有セキュリティ
有駐車場
無耐震
新耐震基準基準階天井高
空室延床面積
26.61坪情報更新日
2025/11/07リードシー東神田ビルのテナント募集中区画
| 階数 | 面積 | 賃料(共益費含む) | 保証金 | 入居可能日 | 検討リスト | 詳細 |
|---|---|---|---|---|---|---|
| 1 | 26.61坪 | 352,000円/月(13,228円/坪) | 192万円 | 即 |
…新着物件
アクセス
リードシー東神田ビルの物件情報
リードシー東神田ビル(千代田区東神田)は馬喰町駅(6番出口)から徒歩5分の賃貸オフィスです。シンプルなパネル張りの外観。基準の貸室は40坪弱です。トイレは男女別で室外に設置されていますので、気兼ねなくご使用頂けるかと思います。エレベーターは1基、セキュリティは機械警備を導入済みです。
田中ビルは靖国通りに面しており、前面は広々としています。馬喰町駅の他に浅草橋駅、岩本町駅などが徒歩圏内です。飲食店は馬喰町駅・浅草橋駅周辺に充実しています。リードシー東神田ビルは馬喰町駅(6番出口)の他に浅草橋駅(西口)徒歩6分、岩本町駅(A4番出口)徒歩7分で利用も可能です。

