リードシー東神田ビルのテナント募集中区画
| 階数 | 面積 | 賃料(共益費含む) | 保証金 | 入居可能日 | 検討リスト | 詳細 |
|---|---|---|---|---|---|---|
| 1 | 26.61坪 | 352,000円/月(13,228円/坪) | 192万円 | 即 |
…新着物件
アクセス
リードシー東神田ビルの物件情報
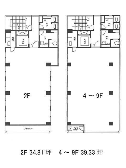
リードシー東神田ビル(千代田区東神田)は馬喰町駅(6番出口)から徒歩5分の賃貸オフィスです。シンプルなパネル張りの外観。基準の貸室は40坪弱です。トイレは男女別で室外に設置されていますので、気兼ねなくご使用頂けるかと思います。エレベーターは1基、セキュリティは機械警備を導入済みです。
田中ビルは靖国通りに面しており、前面は広々としています。馬喰町駅の他に浅草橋駅、岩本町駅などが徒歩圏内です。飲食店は馬喰町駅・浅草橋駅周辺に充実しています。リードシー東神田ビルは馬喰町駅(6番出口)の他に浅草橋駅(西口)徒歩6分、岩本町駅(A4番出口)徒歩7分で利用も可能です。

