村越ビル 6階
物件概要
物件番号
423-00026-50物件名
村越ビル所在地
- 東京都千代田区内神田3-21-6
- アクセスマップ
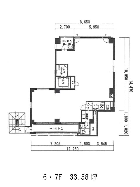
面積
33.58坪賃料(共益費含)
月額647,451円(19,280円/坪)
入居日
即保証金
2,804,400円礼金
なし更新料
なし償却費
なし竣工
1980年11月構造
SRC規模
地上9階/地下1階トイレ
男女別空調
個別空調エレベーター
有セキュリティ
駐車場
無耐震
旧耐震基準基準階天井高
空室延床面積
33.58坪情報更新日
2026/01/23村越ビルのテナント募集中区画
| 階数 | 面積 | 賃料(共益費含む) | 保証金 | 入居可能日 | 検討リスト | 詳細 |
|---|---|---|---|---|---|---|
| 6 | 33.58坪 | 647,451円/月(19,280円/坪) | 280万円 | 即 |
…新着物件
村越ビルのアクセス
村越ビルの物件情報
村越ビル(千代田区内神田)は神田駅(4番出口)から徒歩1分の賃貸オフィスです。村越ビルは神田駅(4番出口)の他に小川町駅(A1番出口)徒歩6分、淡路町駅(A1番出口)徒歩6分で利用も可能です。

