楠本第18ビル 5階
物件概要
物件番号
423-00441-40物件名
楠本第18ビル所在地
- 東京都千代田区内神田1-2-7
- アクセスマップ
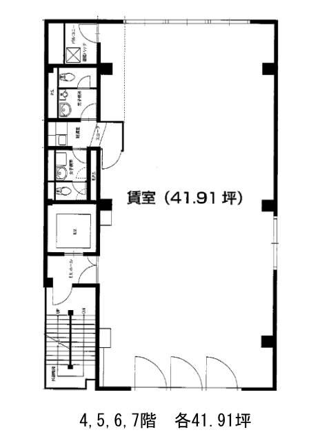
面積
41.91坪賃料(共益費含)
月額829,818円(19,800円/坪)
入居日
即保証金
7,040,880円礼金
なし更新料
なし償却費
なし竣工
1986年3月構造
SRC規模
地上9階/地下1階トイレ
男女別空調
個別空調エレベーター
有セキュリティ
有駐車場
無耐震
耐震補強済み基準階天井高
2460-2530mm空室延床面積
41.91坪情報更新日
2026/01/14楠本第18ビルのテナント募集中区画
| 階数 | 面積 | 賃料(共益費含む) | 保証金 | 入居可能日 | 検討リスト | 詳細 |
|---|---|---|---|---|---|---|
| 5 | 41.91坪 | 829,818円/月(19,800円/坪) | 704万円 | 即 |
…新着物件
楠本第18ビルのアクセス
楠本第18ビルの物件情報
楠本第18ビル(千代田区内神田)は大手町駅(C2b番出口)から徒歩5分の賃貸オフィスです。外観はダークカラーのガラスをベースにしたグリッドデザインでシンプルな中にもお洒落さが光ります。基準階は約42坪で、1フロア1テナント仕様。長方形に近い間取りの無柱空間のため、フレキシブルなレイアウトが可能です。男女別トイレと給湯設備は室内に設置されているため、各階の独立性が確保されています。機械警備を採用していますので、セキュリティ面もご安心頂けそうです。
楠本第18ビルは本郷通りに面し、神田橋交差点にほど近い立地。近隣にはカフェやコンビニがあります。大手町駅の他に神田駅も徒歩圏内ですので、JR線をご利用の際にはこちらが便利でしょう。楠本第18ビルは大手町駅(C2b番出口)の他に新御茶ノ水駅(B6番出口)徒歩6分、小川町駅(B6番出口)徒歩6分で利用も可能です。

