7階は現在募集がありません
1フロア募集区画あり

楠本第18ビル 7階

前の写真 次の写真

物件概要

物件番号

423-00441-60

物件名

楠本第18ビル

所在地

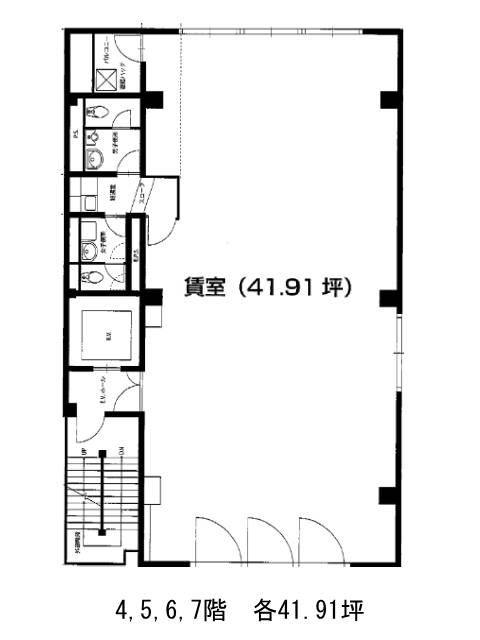
面積

41.91坪

賃料(共益費含)


入居日

募集終了

保証金

礼金

更新料

償却費

竣工

1986年3月

構造

SRC

規模

地上9階/地下1階

トイレ

男女別

空調

個別空調

エレベーター

セキュリティ

駐車場

耐震

耐震補強済み

基準階天井高

2460-2530mm

空室延床面積

41.91坪

最寄駅

情報更新日

2026/01/14

楠本第18ビルのテナント募集中区画

階数 面積 賃料(共益費含む) 保証金 入居可能日 検討リスト 詳細
5 41.91坪 829,818円/月(19,800円/坪) 704万円
…新着物件

楠本第18ビルのアクセス

楠本第18ビルの物件情報

楠本第18ビル(千代田区内神田)は大手町駅(C2b番出口)から徒歩5分の賃貸オフィスです。
外観はダークカラーのガラスをベースにしたグリッドデザインでシンプルな中にもお洒落さが光ります。基準階は約42坪で、1フロア1テナント仕様。長方形に近い間取りの無柱空間のため、フレキシブルなレイアウトが可能です。男女別トイレと給湯設備は室内に設置されているため、各階の独立性が確保されています。機械警備を採用していますので、セキュリティ面もご安心頂けそうです。
楠本第18ビルは本郷通りに面し、神田橋交差点にほど近い立地。近隣にはカフェやコンビニがあります。大手町駅の他に神田駅も徒歩圏内ですので、JR線をご利用の際にはこちらが便利でしょう。
楠本第18ビルは大手町駅(C2b番出口)の他に新御茶ノ水駅(B6番出口)徒歩6分、小川町駅(B6番出口)徒歩6分で利用も可能です。

近隣のエリア・駅から探す