一広グローバルビルディング 2階
物件概要
物件番号
423-00465-12物件名
一広グローバルビルディング所在地
- 東京都千代田区内神田2-4-2
- アクセスマップ
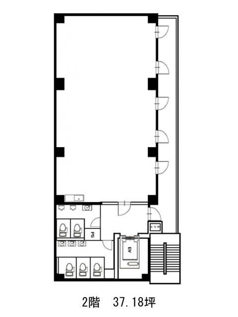
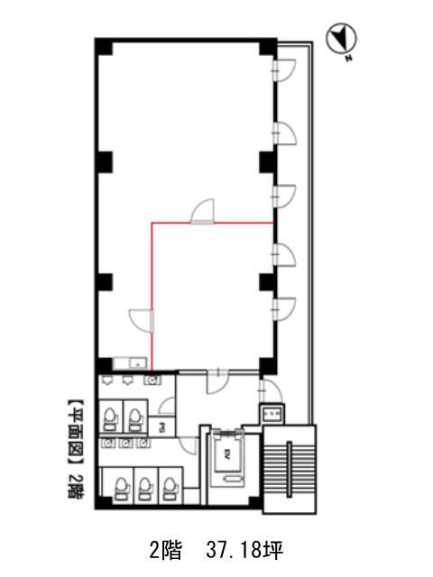
面積
37.18坪賃料(共益費含)
月額838,409円(22,550円/坪)
入居日
相談保証金
4,573,140円礼金
1ケ月更新料
新1ケ月償却費
なし竣工
2020年11月構造
S造規模
地上11階トイレ
男女別空調
個別空調エレベーター
有セキュリティ
駐車場
無耐震
新耐震基準基準階天井高
空室延床面積
37.18坪情報更新日
2025/12/16一広グローバルビルディングのテナント募集中区画
| 階数 | 面積 | 賃料(共益費含む) | 保証金 | 入居可能日 | 検討リスト | 詳細 |
|---|---|---|---|---|---|---|
| 2 | 37.18坪 | 838,409円/月(22,550円/坪) | 457万円 | 相談 |
…新着物件
一広グローバルビルディングのアクセス
一広グローバルビルディングの物件情報
一広グローバルビルディング(千代田区内神田)は神田駅(西口)から徒歩4分の賃貸オフィスです。一広グローバルビルディングは神田駅(西口)の他に大手町駅(A2番出口)徒歩6分、新日本橋駅(2番出口)徒歩7分で利用も可能です。

