5階は現在募集がありません
1フロア募集区画あり

一広グローバルビルディング 5階

前の写真 次の写真

物件概要

物件番号

423-00465-15

物件名

一広グローバルビルディング

所在地

面積

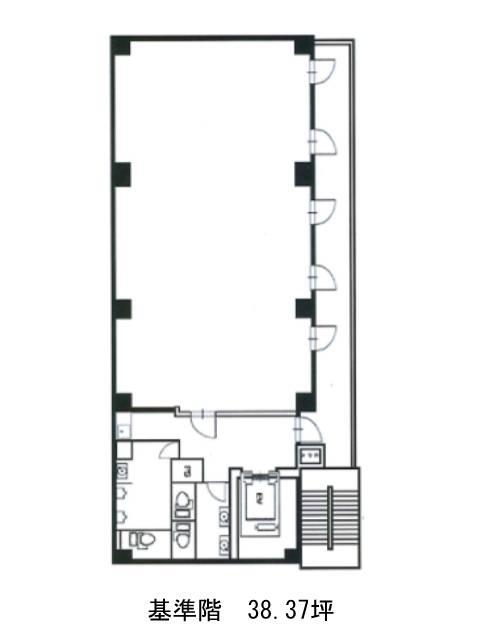
38.37坪

賃料(共益費含)


入居日

募集終了

保証金

礼金

更新料

償却費

竣工

2020年11月

構造

S造

規模

地上11階

トイレ

男女別

空調

個別空調

エレベーター

セキュリティ

駐車場

耐震

新耐震基準

基準階天井高

空室延床面積

37.18坪

最寄駅

情報更新日

2025/12/16

一広グローバルビルディングのテナント募集中区画

階数 面積 賃料(共益費含む) 保証金 入居可能日 検討リスト 詳細
2 37.18坪 838,409円/月(22,550円/坪) 457万円 相談
…新着物件

一広グローバルビルディングのアクセス

一広グローバルビルディングの物件情報

一広グローバルビルディング(千代田区内神田)は神田駅(西口)から徒歩4分の賃貸オフィスです。
一広グローバルビルディングは神田駅(西口)の他に大手町駅(A2番出口)徒歩6分、新日本橋駅(2番出口)徒歩7分で利用も可能です。

近隣のエリア・駅から探す