一広グローバルビルディングのテナント募集中区画
| 階数 | 面積 | 賃料(共益費含む) | 保証金 | 入居可能日 | 検討リスト | 詳細 |
|---|---|---|---|---|---|---|
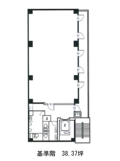
| 2 | 37.18坪 | 838,409円/月(22,550円/坪) | 457万円 | 相談 |
…新着物件
アクセス
一広グローバルビルディングの物件情報
一広グローバルビルディング(千代田区内神田)は神田駅(西口)から徒歩4分の賃貸オフィスです。一広グローバルビルディングは神田駅(西口)の他に大手町駅(A2番出口)徒歩6分、新日本橋駅(2番出口)徒歩7分で利用も可能です。

