21階は現在募集がありません
7フロア募集区画あり

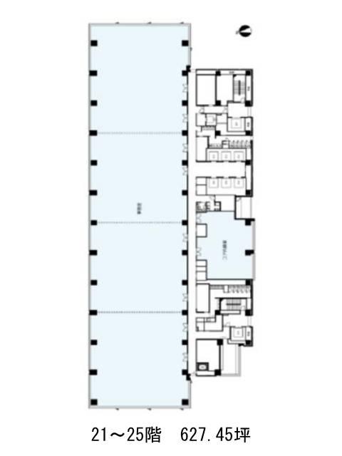
大手町ゲートビルディング 21階

前の写真 次の写真

物件概要

物件番号

423-00476-10

物件名

大手町ゲートビルディング

所在地

面積

627.45坪

賃料(共益費含)


入居日

募集終了

保証金

礼金

更新料

償却費

竣工

2026年7月

構造

S造

規模

地上26階/地下3階

トイレ

男女別

空調

エレベーター

セキュリティ

駐車場

耐震

新耐震基準

基準階天井高

2900mm

空室延床面積

694.10坪

最寄駅

情報更新日

2026/01/16

大手町ゲートビルディングのテナント募集中区画

階数 面積 賃料(共益費含む) 保証金 入居可能日 検討リスト 詳細
8 179.20坪 応相談(応相談) 応相談 2027年2月上旬
18 157.50坪 応相談(応相談) 応相談 2027年2月上旬
18 48.50坪 応相談(応相談) 応相談 2027年2月上旬
18 48.50坪 応相談(応相談) 応相談 2027年2月上旬
18 94.50坪 応相談(応相談) 応相談 2027年2月上旬
18 131.10坪 応相談(応相談) 応相談 2027年2月上旬
18 34.80坪 応相談(応相談) 応相談 2027年2月上旬
…新着物件

アクセス

大手町ゲートビルディングの物件情報

大手町ゲートビルディング(千代田区内神田)は大手町駅(A2番出口)から徒歩4分の賃貸オフィスです。
2025年11月竣工、地上26階地下3階建てS造の新築ビルです。貸室は600坪を超えるものがそろい、大型の事務所をお探しの方によいでしょう。EV21基・駐車場約150台・貸室外の男女別トイレ・各階4分割にゾーニング+VAV方式の空調・LED照明といった充実の設備仕様をしています。ビルの建設と共に人道橋や船着き場の整備が行われ、新たな人の流れを生み出せるでしょう。オフィス・店舗・産業支援施設が入ります。
大手町ゲートビルディングは大手町駅(A2番出口)の他に神田駅(南口)徒歩6分、新日本橋駅(2番出口)徒歩9分で利用も可能です。

近隣のエリア・駅から探す