大手町ゲートビルディング 8階
物件概要
物件番号
423-00476-18物件名
大手町ゲートビルディング所在地
- 東京都千代田区内神田1-31-11
- アクセスマップ
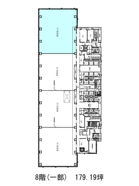
面積
179.20坪賃料(共益費含)
:応相談応相談
入居日
2027年2月上旬保証金
応相談礼金
なし更新料
なし償却費
なし竣工
2026年7月構造
S造規模
地上26階/地下3階トイレ
男女別空調
エレベーター
有セキュリティ
駐車場
有耐震
新耐震基準基準階天井高
2900mm空室延床面積
563.00坪情報更新日
2026/03/11大手町ゲートビルディングのテナント募集中区画
…新着物件
大手町ゲートビルディングのアクセス
大手町ゲートビルディングの物件情報
大手町ゲートビルディング(千代田区内神田)は大手町駅(A2番出口)から徒歩4分の賃貸オフィスです。2025年11月竣工、地上26階地下3階建てS造の新築ビルです。貸室は600坪を超えるものがそろい、大型の事務所をお探しの方によいでしょう。EV21基・駐車場約150台・貸室外の男女別トイレ・各階4分割にゾーニング+VAV方式の空調・LED照明といった充実の設備仕様をしています。ビルの建設と共に人道橋や船着き場の整備が行われ、新たな人の流れを生み出せるでしょう。オフィス・店舗・産業支援施設が入ります。大手町ゲートビルディングは大手町駅(A2番出口)の他に神田駅(南口)徒歩6分、新日本橋駅(2番出口)徒歩9分で利用も可能です。

