物件概要
物件番号
634-00263-10
物件名
第2五味ビル
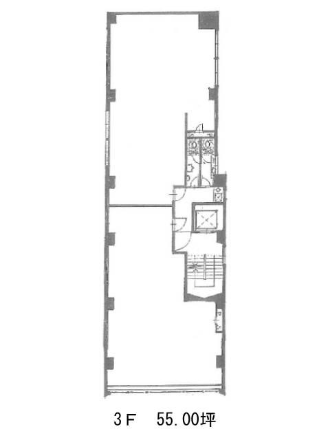
面積
55.00坪
賃料(共益費含)
−
入居日
募集終了
保証金
−
礼金
−
更新料
−
償却費
−
竣工
1971年1月
構造
RC
規模
地上9階/地下1階
トイレ
男女別
空調
個別空調
エレベーター
有
セキュリティ
有
駐車場
無
耐震
旧耐震基準
基準階天井高
空室延床面積
220.00坪
情報更新日
2026/02/18
第2五味ビルのテナント募集中区画
| 階数 |
面積 |
賃料(共益費含む) |
保証金 |
入居可能日 |
検討リスト |
詳細 |
| 3 |
26.00坪 |
371,800円/月(14,300円/坪) |
応相談 |
即 |
|
|
| 3 |
29.00坪 |
414,700円/月(14,300円/坪) |
応相談 |
即 |
|
|
| 4 |
26.00坪 |
371,800円/月(14,300円/坪) |
応相談 |
即 |
|
|
| 4 |
29.00坪 |
414,700円/月(14,300円/坪) |
応相談 |
即 |
|
|
| 5 |
55.00坪 |
786,500円/月(14,300円/坪) |
応相談 |
即 |
|
|
| 6 |
55.00坪 |
786,500円/月(14,300円/坪) |
応相談 |
即 |
|
|
…新着物件
第2五味ビルの物件情報
第2五味ビル(中央区銀座)は銀座一丁目駅(11番出口)から徒歩3分の賃貸オフィスです。地上9階地下1階建てRC造、1971年竣工のビルです。こげ茶色の外壁で、すらりと細長い形状をしています。基準階面積は54.73坪。長方形のフロアは共用部が一部に集約し、使い勝手が良いでしょう。設備仕様として、EV・個別空調・湯沸室・光ケーブル・貸室外の男女別トイレがそろいます。セキュリティとして機械警備が導入されています。間取りは、支柱が中央になくレイアウトがしやすい形状をしています。第2五味ビルは銀座一丁目駅(11番出口)の他に宝町駅(A3番出口)徒歩4分、東銀座駅(A8番出口)徒歩5分で利用も可能です。