第2五味ビル 6階
物件概要
物件番号
634-00263-46物件名
第2五味ビル所在地
- 東京都中央区銀座1-14-5
- アクセスマップ
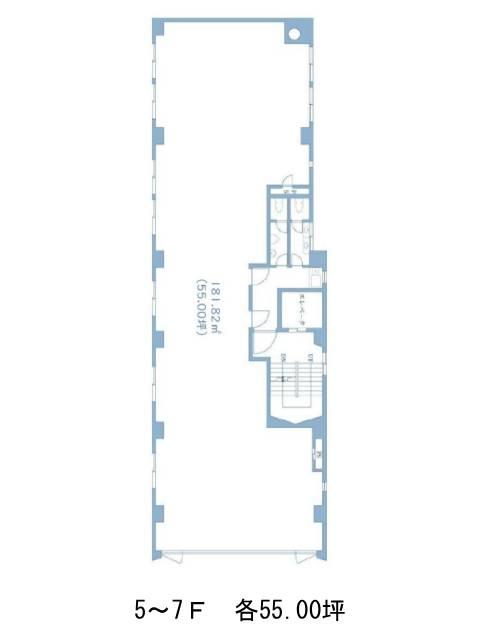
面積
55.00坪賃料(共益費含)
月額786,500円(14,300円/坪)
入居日
即保証金
応相談礼金
なし更新料
なし償却費
なし竣工
1971年1月構造
RC規模
地上9階/地下1階トイレ
男女別空調
個別空調エレベーター
有セキュリティ
有駐車場
無耐震
旧耐震基準基準階天井高
空室延床面積
220.00坪情報更新日
2026/02/18第2五味ビルのテナント募集中区画
…新着物件
第2五味ビルのアクセス
第2五味ビルの物件情報
第2五味ビル(中央区銀座)は銀座一丁目駅(11番出口)から徒歩3分の賃貸オフィスです。地上9階地下1階建てRC造、1971年竣工のビルです。こげ茶色の外壁で、すらりと細長い形状をしています。基準階面積は54.73坪。長方形のフロアは共用部が一部に集約し、使い勝手が良いでしょう。設備仕様として、EV・個別空調・湯沸室・光ケーブル・貸室外の男女別トイレがそろいます。セキュリティとして機械警備が導入されています。間取りは、支柱が中央になくレイアウトがしやすい形状をしています。第2五味ビルは銀座一丁目駅(11番出口)の他に宝町駅(A3番出口)徒歩4分、東銀座駅(A8番出口)徒歩5分で利用も可能です。

