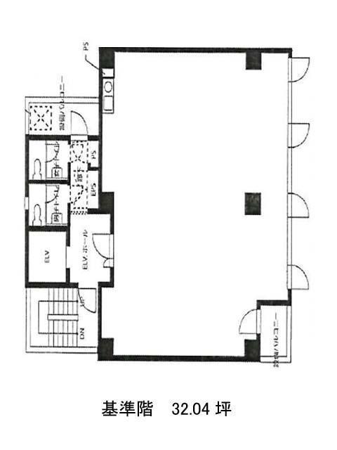
MYS東日本橋のテナント募集中区画
| 階数 | 面積 | 賃料(共益費含む) | 保証金 | 入居可能日 | 検討リスト | 詳細 |
|---|---|---|---|---|---|---|
| 5 | 32.05坪 | 515,000円/月(16,068円/坪) | 280万円 | 2026年4月上旬 | ||
| 6 | 28.08坪 | 440,000円/月(15,670円/坪) | 240万円 | 即 |
…新着物件
アクセス
MYS東日本橋の物件情報
MYS東日本橋(中央区東日本橋)は馬喰町駅(5番出口)から徒歩4分の賃貸オフィスです。MYS東日本橋は馬喰町駅(5番出口)の他に東日本橋駅(出口)徒歩5分、浅草橋駅(A1番出口)徒歩5分で利用も可能です。

