MYS東日本橋 5階
物件概要
物件番号
642-00022-50物件名
MYS東日本橋所在地
- 東京都中央区東日本橋2-23-3
- アクセスマップ
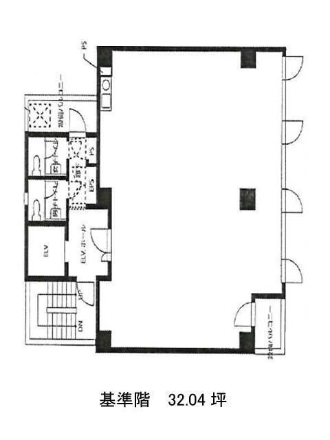
面積
32.05坪賃料(共益費含)
月額515,000円(16,068円/坪)
入居日
2026年4月上旬保証金
2,809,118円礼金
1ケ月更新料
新1ケ月償却費
なし竣工
1991年10月構造
RC規模
地上7階トイレ
男女別空調
個別空調エレベーター
有セキュリティ
有駐車場
無耐震
新耐震基準基準階天井高
空室延床面積
60.13坪情報更新日
2025/09/18MYS東日本橋のテナント募集中区画
| 階数 | 面積 | 賃料(共益費含む) | 保証金 | 入居可能日 | 検討リスト | 詳細 |
|---|---|---|---|---|---|---|
| 5 | 32.05坪 | 515,000円/月(16,068円/坪) | 280万円 | 2026年4月上旬 | ||
| 6 | 28.08坪 | 440,000円/月(15,670円/坪) | 240万円 | 即 |
…新着物件
アクセス
MYS東日本橋の物件情報
MYS東日本橋(中央区東日本橋)は馬喰町駅(5番出口)から徒歩4分の賃貸オフィスです。MYS東日本橋は馬喰町駅(5番出口)の他に東日本橋駅(出口)徒歩5分、浅草橋駅(A1番出口)徒歩5分で利用も可能です。

