FORECAST桜橋 1階
物件概要
物件番号
665-00180-10物件名
FORECAST桜橋所在地
- 東京都中央区八丁堀4-5-4
- アクセスマップ
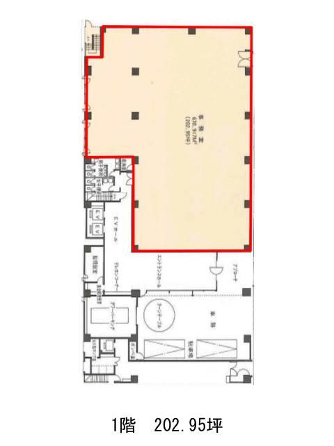
面積
202.95坪賃料(共益費含)
:応相談応相談
入居日
2026年1月上旬保証金
応相談礼金
なし更新料
なし償却費
なし竣工
1985年4月構造
SRC規模
地上9階トイレ
男女別空調
個別空調エレベーター
有セキュリティ
有駐車場
有耐震
新耐震基準基準階天井高
2600mm空室延床面積
484.45坪情報更新日
2025/11/12FORECAST桜橋のテナント募集中区画
| 階数 | 面積 | 賃料(共益費含む) | 保証金 | 入居可能日 | 検討リスト | 詳細 |
|---|---|---|---|---|---|---|
| 1 | 202.95坪 | 応相談(応相談) | 応相談 | 2026年1月上旬 | ||
| 7 | 107.10坪 | 応相談(応相談) | 応相談 | 2026年1月上旬 | ||
| 7 | 174.40坪 | 応相談(応相談) | 応相談 | 2026年1月上旬 |
…新着物件
アクセス
FORECAST桜橋の物件情報
FORECAST桜橋(中央区八丁堀)は八丁堀駅(A3番出口)から徒歩3分の賃貸オフィスです。明るいベージュの外壁をした地上9階建ビルです。平成通り沿いの角地に建ち視認性が高いでしょう。2006年の大規模リニューアルを経て明るく清潔感のある共用部をしています。EVホールやエントランスまわりは天然石や植栽も取り入れ明るいデザイン。駐車場・EV・OAフロア・個別空調といった設備仕様です。基準階は約313坪、大型物件をお探しの方によいでしょう。近隣はオフィスビルが多く、落ち着きのある街並みをしています。FORECAST桜橋は八丁堀駅(A3番出口)の他に宝町駅(A2番出口)徒歩5分、新富町駅(3番出口)徒歩6分で利用も可能です。

