FORECAST桜橋のテナント募集中区画
| 階数 | 面積 | 賃料(共益費含む) | 保証金 | 入居可能日 | 検討リスト | 詳細 |
|---|---|---|---|---|---|---|
| 1 | 202.95坪 | 応相談(応相談) | 応相談 | 即 |
…新着物件
FORECAST桜橋のアクセス
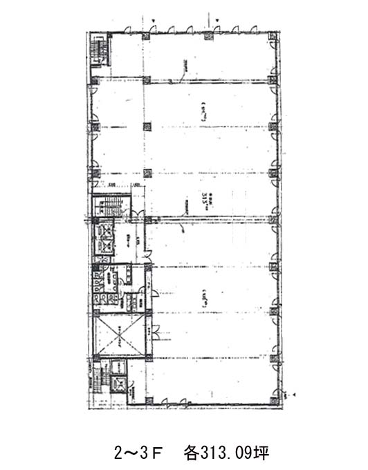
FORECAST桜橋の物件情報
FORECAST桜橋(中央区八丁堀)は八丁堀駅(A3番出口)から徒歩3分の賃貸オフィスです。明るいベージュの外壁をした地上9階建ビルです。平成通り沿いの角地に建ち視認性が高いでしょう。2006年の大規模リニューアルを経て明るく清潔感のある共用部をしています。EVホールやエントランスまわりは天然石や植栽も取り入れ明るいデザイン。駐車場・EV・OAフロア・個別空調といった設備仕様です。基準階は約313坪、大型物件をお探しの方によいでしょう。近隣はオフィスビルが多く、落ち着きのある街並みをしています。FORECAST桜橋は八丁堀駅(A3番出口)の他に宝町駅(A2番出口)徒歩5分、新富町駅(3番出口)徒歩6分で利用も可能です。

