八丁堀サード 5階
物件概要
物件番号
665-00312-23物件名
八丁堀サード所在地
- 東京都中央区八丁堀3-14-4
- アクセスマップ
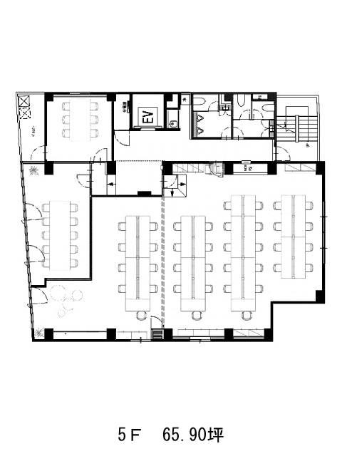
面積
65.90坪賃料(共益費含)
月額1,667,270円(25,300円/坪)
入居日
即保証金
9,094,200円礼金
なし更新料
なし償却費
なし竣工
1985年12月構造
SRC規模
地上8階トイレ
男女別空調
個別空調エレベーター
有セキュリティ
有駐車場
無耐震
新耐震基準基準階天井高
2810mm空室延床面積
65.90坪情報更新日
2026/02/19八丁堀サードのテナント募集中区画
| 階数 | 面積 | 賃料(共益費含む) | 保証金 | 入居可能日 | 検討リスト | 詳細 |
|---|---|---|---|---|---|---|
| 5 | 65.90坪 | 1,667,270円/月(25,300円/坪) | 909万円 | 即 |
…新着物件
八丁堀サードのアクセス
八丁堀サードの物件情報
八丁堀サード(中央区八丁堀)は八丁堀駅(A5番出口)から徒歩3分の賃貸オフィスです。タイル張りのシンプルな外観を持つ当ビルですが、エントランスに一歩足を踏み入れると印象がガラリと変わります。木目調のデザインと間接照明で演出された内装は、温かみがありながらも洗練された雰囲気。来訪者にも好印象を与えてくれそうです。
基準階は約65坪のワンフロア・ワンテナント仕様。水回りが室外に集約されているため、レイアウトの自由度も高く、使い勝手のよさが光ります。周囲にはコンビニや飲食店も点在し、ランチや急な買い出しにも便利なロケーション。働く人の目線に寄り添った、バランスのとれた一棟です。八丁堀サードは八丁堀駅(A5番出口)の他に宝町駅(A8番出口)徒歩6分、茅場町駅(2番出口)徒歩6分で利用も可能です。

