八丁堀サードのテナント募集中区画
| 階数 | 面積 | 賃料(共益費含む) | 保証金 | 入居可能日 | 検討リスト | 詳細 |
|---|---|---|---|---|---|---|
| 5 | 65.90坪 | 1,667,270円/月(25,300円/坪) | 909万円 | 即 |
…新着物件
八丁堀サードのアクセス
八丁堀サードの物件情報
八丁堀サード(中央区八丁堀)は八丁堀駅(A5番出口)から徒歩3分の賃貸オフィスです。タイル張りのシンプルな外観を持つ当ビルですが、エントランスに一歩足を踏み入れると印象がガラリと変わります。木目調のデザインと間接照明で演出された内装は、温かみがありながらも洗練された雰囲気。来訪者にも好印象を与えてくれそうです。
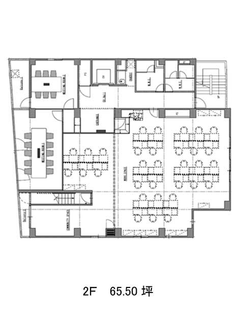
基準階は約65坪のワンフロア・ワンテナント仕様。水回りが室外に集約されているため、レイアウトの自由度も高く、使い勝手のよさが光ります。周囲にはコンビニや飲食店も点在し、ランチや急な買い出しにも便利なロケーション。働く人の目線に寄り添った、バランスのとれた一棟です。八丁堀サードは八丁堀駅(A5番出口)の他に宝町駅(A8番出口)徒歩6分、茅場町駅(2番出口)徒歩6分で利用も可能です。

