東京トラフィック錦糸町ビル南館 5階
物件概要
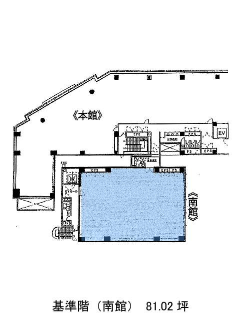
東京トラフィック錦糸町ビル南館のテナント募集中区画
| 階数 | 面積 | 賃料(共益費含む) | 保証金 | 入居可能日 | 検討リスト | 詳細 |
|---|---|---|---|---|---|---|
| 5 | 81.02坪 | 応相談(応相談) | 応相談 | 2026年7月上旬 |
…新着物件
東京トラフィック錦糸町ビル南館のアクセス
東京トラフィック錦糸町ビル南館の物件情報
東京トラフィック錦糸町ビル南館(墨田区江東橋)は錦糸町駅(出口1)から徒歩3分の賃貸オフィスです。京葉道路と四ツ目通りの交差点に位置する地上9階建てです。東京トラフィック錦糸町ビル本館を建て増しするかたちで2000年に竣工しました。角地に建ち、外観はミラーガラスと赤い支柱が特徴的で、視認性抜群のデザインです。室内は長方形の整形無柱空間ですので、レイアウトが組みやすいでしょう。主な設備はエレベーターが1基、個別空調、駐車場等です。周辺には商業施設や飲食店、金融機関などが複数営業していますので、食事や買い物等にも困りません。東京トラフィック錦糸町ビル南館は錦糸町駅(出口1)の他に住吉駅(B2番出口)徒歩9分、亀戸駅(北口)徒歩14分で利用も可能です。

