目黒FSDビル 6階
物件概要
物件番号
891-00030-40物件名
目黒FSDビル所在地
- 東京都目黒区目黒2-15-14
- アクセスマップ
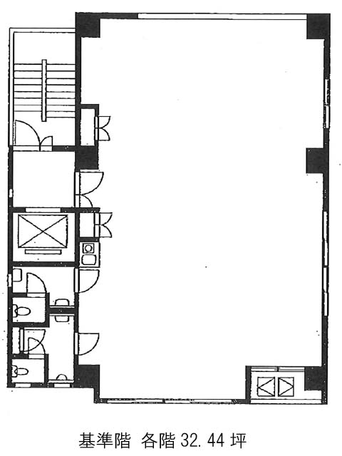
面積
32.44坪賃料(共益費含)
月額463,892円(14,300円/坪)
入居日
2026年5月上旬保証金
2,335,680円礼金
なし更新料
新1ケ月償却費
なし竣工
1990年11月構造
SRC規模
地上8階/地下1階トイレ
男女別空調
個別空調エレベーター
有セキュリティ
駐車場
有耐震
新耐震基準基準階天井高
空室延床面積
97.32坪情報更新日
2025/12/11目黒FSDビルのテナント募集中区画
| 階数 | 面積 | 賃料(共益費含む) | 保証金 | 入居可能日 | 検討リスト | 詳細 |
|---|---|---|---|---|---|---|
| 3 | 32.44坪 | 428,206円/月(13,200円/坪) | 214万円 | 即 | ||
| 5 | 32.44坪 | 463,892円/月(14,300円/坪) | 233万円 | 2026年5月上旬 | ||
| 6 | 32.44坪 | 463,892円/月(14,300円/坪) | 233万円 | 2026年5月上旬 |
…新着物件
アクセス
目黒FSDビルの物件情報
目黒FSDビル(目黒区目黒)は中目黒駅(出口)から徒歩14分の賃貸オフィスです。目黒FSDビルは中目黒駅(出口)の他に目黒駅(出口3)徒歩15分で利用も可能です。

