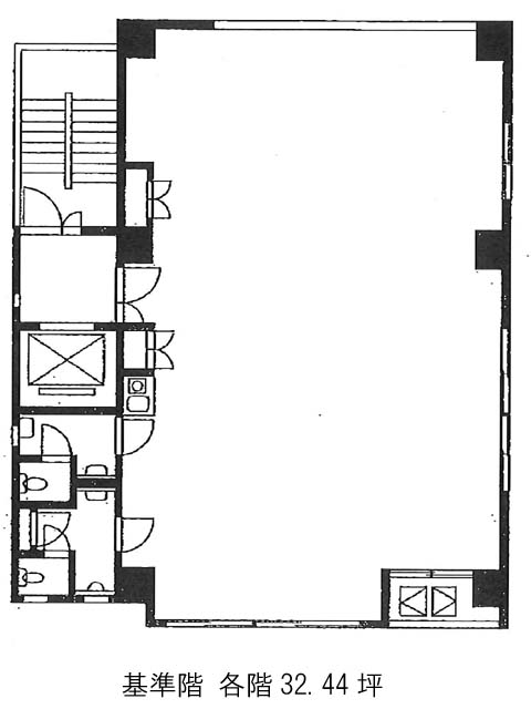
目黒FSDビルのテナント募集中区画
| 階数 | 面積 | 賃料(共益費含む) | 保証金 | 入居可能日 | 検討リスト | 詳細 |
|---|---|---|---|---|---|---|
| 5 | 32.44坪 | 463,892円/月(14,300円/坪) | 233万円 | 2026年5月上旬 | ||
| 6 | 32.44坪 | 463,892円/月(14,300円/坪) | 233万円 | 2026年5月上旬 |
…新着物件
目黒FSDビルのアクセス
目黒FSDビルの物件情報
目黒FSDビル(目黒区目黒)は中目黒駅(出口)から徒歩14分の賃貸オフィスです。目黒FSDビルは中目黒駅(出口)の他に目黒駅(出口3)徒歩15分で利用も可能です。

