賃貸オフィス東京.com

スタッフブログ

東京の賃貸オフィス・
賃貸事務所をお探しの方へ

徹底サポートのスタッフブログ

「七十七銀座ビル」大通り沿い角地!駅出口目の前でアクセス・視認性・開放感申し分なしのオフィスビル🏢

七十七銀座ビルのメイン画像

晴海通り沿い、万年橋西交差点に面する角地に佇むスタイリッシュな本物件✨️

間取り図を見る

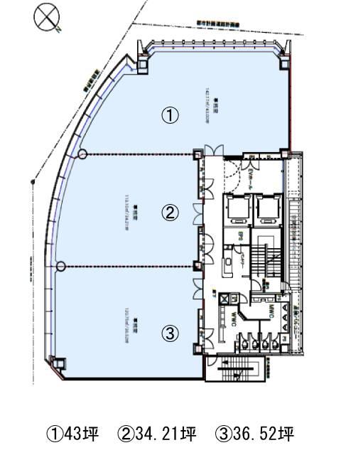
FLOOR MAP

1フロア最大約114坪。
分割募集も想定されています!
大通りの角地に立地しているため、窓からは開放感のある景色が広がります🏢
天井高は2800mmです✨️

その他の画像を見る

OTHER PHOTO
七十七銀座ビルのエントランス エントランス
七十七銀座ビルのホール ホール
七十七銀座ビルのエレベーター エレベーター

建物の基本情報

INFORMATION

名称七十七銀座ビル

住所東京都中央区銀座4-14-11

竣工2015年8月

規模地上11階地下1階

構造S造

交通各線「東銀座駅」徒歩1分

設備等エレベーター2基・OAフロア・個別空調
男女別トイレ・機械警備・駐車場

終わりに

END

ー視認性抜群の角地ビル|晴海通り沿い・丸みを帯びたガラスファサードー
晴海通りと万年橋西交差点が交わる角地に位置し、視認性の高いガラス張りのファサードが目を引くオフィスビルのご紹介です。
外観はゆるやかなカーブを描いた造形で、街並みにやわらかな印象を与えています。
1階エントランスホールは、間接照明を活かした落ち着いた雰囲気。石張りの壁面とミニマルな装飾が上品な空間を演出しています。
基準階は約114坪、分割での利用実績もあり、多様なオフィスニーズに対応可能。区画ごとに自然光が差し込みやすい設計となっており、快適なワークスペースが確保できます。
さらに1階にはコンビニが入居しており、急な買い物にも便利。立地・設備ともにバランスが取れた、日々の業務をスマートに支える物件です。

その他のおすすめ物件を見る

OTHER

日本橋本町東急ビルは、三越前駅徒歩3分、江戸桜通り沿いの角地に立地するオフィスビルです。
2004年築ながら、リニューアルや丁寧な管理により、現在でも高い美観を維持。
ガラス面とフレームを基調とした外観は、周辺の街並みに調和しつつ、品格ある存在感を放ちます。
隣接するコレド室町2・コレド室町をはじめ、商業・金融機能が集積した日本橋らしい利便性の高い環境が整っています。

2026.04.13 中央区

新宿通りと貝坂通りが交わる角地に佇む本物件。
オフィスとしての使いやすさは保ちながら、建物内外共にデザイン性が高く、この物件にしかない味わいがあります。

2025.12.01 千代田区

”京橋彩区”を構成するビルの一つとして誕生した本物件。
アートが融合する次世代ビルで次のステージへ誘います✨️

2025.11.11 中央区