賃貸オフィス東京.com

スタッフブログ

東京の賃貸オフィス・
賃貸事務所をお探しの方へ

徹底サポートのスタッフブログ

「赤坂榎坂ビル」溜池山王駅徒歩1分!🚇️ビジネスフットワークを軽くする好立地物件です🏃

赤坂榎坂ビルのメイン画像

溜池山王駅14番出口目の前の好立地物件♪5路線が利用可能です!

間取り図を見る

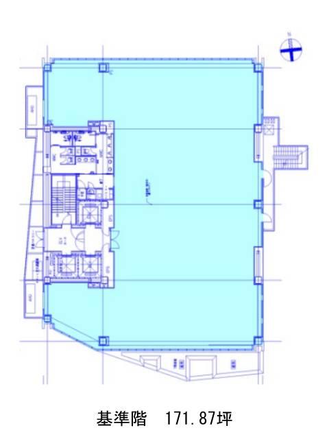
FLOOR MAP

基準階は約171.87坪。奥行き・間口ともにゆとりがあり、天井高も2.8mと、圧迫感のない空間設計です。
中央部に設備や共用部が集約されているため、貸室内は非常にすっきりとした印象で、コアの干渉が少ない分、レイアウト自由度も高め。
ゾーンごとの空調制御が可能なため、執務・会議・リフレッシュエリアの切り分けにも対応しやすく、フリーアドレスやABWにも向いた設計です。

その他の画像を見る

OTHER PHOTO
赤坂榎坂ビルのエントランス エントランス
赤坂榎坂ビルのホール ホール
赤坂榎坂ビルのエレベーター エレベーター
赤坂榎坂ビルの駐車場 駐車場

建物の基本情報

INFORMATION

名称赤坂榎坂ビル

住所東京都港区赤坂1-7-1

竣工2009年2月

規模地上11階地下2階

構造SRC造

交通各線「溜池山王駅」徒歩1分

設備等エレベーター3基・OAフロア・セントラル空調
男女別トイレ・機械警備・駐車場

終わりに

END

赤坂・溜池山王の交差点で、次のビジネスを加速させる

赤坂の中心に位置する「赤坂榎坂ビル」は、都市の利便性と洗練された空間を兼ね備えた上質なオフィスビルです。
東京メトロ「溜池山王駅」13・14番出口から徒歩わずか1分。銀座線・南北線・千代田線・丸ノ内線・日比谷線の5路線が使えるアクセスの良さは、都内のどこへも軽やかに繋がるビジネスの強み。
赤坂駅や六本木一丁目駅も徒歩圏に収まり、立地の魅力は申し分ありません。

ファサードは全面ガラス張り。現代的かつ清潔感に溢れた佇まいは、時代に左右されにくい普遍的な美しさを纏っています。
ビルに一歩足を踏み入れると、木目調天井と重厚感のある石造りの壁が迎えるエントランスホールが広がります。
ゆったりと配置されたアート作品やソファは、訪れるゲストに上質な第一印象を与えることでしょう。

基準階は約172坪。天井高2.8mの開放感に加え、グリッド天井による柔軟なレイアウト対応、ゾーン制御型の空調、BCP対応の高耐震構造など、ハイスペックな設備が揃います。
さらに、建物内にはルーフテラスも併設。各フロアから直接アクセスでき、ちょっとした休憩やゲスト対応にも活躍。都心にありながら、自然を感じられる貴重なリフレッシュ空間です。
セキュリティも3段階のICカード認証によってしっかり管理されており、日々の安心感も申し分ありません。

その他のおすすめ物件を見る

OTHER

日本橋本町東急ビルは、三越前駅徒歩3分、江戸桜通り沿いの角地に立地するオフィスビルです。
2004年築ながら、リニューアルや丁寧な管理により、現在でも高い美観を維持。
ガラス面とフレームを基調とした外観は、周辺の街並みに調和しつつ、品格ある存在感を放ちます。
隣接するコレド室町2・コレド室町をはじめ、商業・金融機能が集積した日本橋らしい利便性の高い環境が整っています。

2026.04.13 中央区

新宿通りと貝坂通りが交わる角地に佇む本物件。
オフィスとしての使いやすさは保ちながら、建物内外共にデザイン性が高く、この物件にしかない味わいがあります。

2025.12.01 千代田区

”京橋彩区”を構成するビルの一つとして誕生した本物件。
アートが融合する次世代ビルで次のステージへ誘います✨️

2025.11.11 中央区