賃貸オフィス東京.com

スタッフブログ

東京の賃貸オフィス・
賃貸事務所をお探しの方へ

徹底サポートのスタッフブログ

「青山ファーストビル」華やかな青山の立地でも、しっかりとビジネスの重厚感を纏ったオフィス物件🏢

青山ファーストビルのメイン画像

青山通りは青山学院前交差点に面する角地で存在感、開放感共に優れています。
エントランス周りは石材を用いており、上質な雰囲気です。

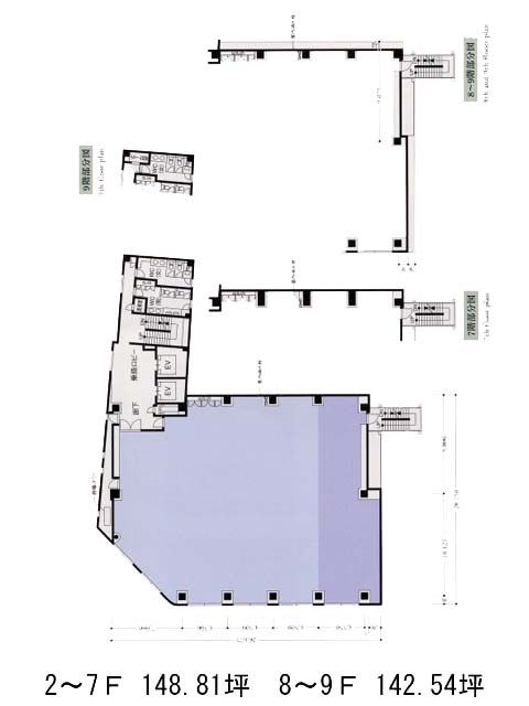
間取り図を見る

FLOOR MAP

基準階は約150坪ほどの広さがあり、整った形状が印象的なフロア。
柱が室内に出てこない無柱設計のため、家具やレイアウトの自由度も高く、きれいに整えやすい空間です。
水回りは執務スペースから独立した場所に配置されており、来客時にも安心感があります。

その他の画像を見る

OTHER PHOTO
青山ファーストビルのエントランス エントランス
青山ファーストビルのエントランス エントランス
青山ファーストビルのホール ホール
青山ファーストビルのエレベーター エレベーター

建物の基本情報

INFORMATION

名称青山ファーストビル

住所東京都渋谷区渋谷2-1-1

竣工2002年1月

規模地上9階地下1階

構造SRC造

交通各線「表参道駅」徒歩5分

設備等エレベーター2基・OAフロア・個別空調
男女別トイレ・機械警備・駐車場

終わりに

END

トレンド発信地・表参道で、静かに存在感を放つビル

表参道駅から徒歩5分。青山学院前交差点に面する「青山ファーストビル」は、青山通り沿いの視認性に優れたロケーションに建つ大型オフィスビルです。
流行の発信地として常に注目を集めるこのエリアにあって、本物件は華美になりすぎず、落ち着いた外観デザインが印象的。
賑やかさの中にも、しっかりとビジネスの重厚感を感じさせる一棟です。

基準階は約150坪の広さを確保。無柱設計に加えOAフロアも完備されており、すっきりとしたレイアウトを実現できます。
天井高は2,700mmとゆとりがあり、明るく開放的なオフィス環境を演出。業種を問わず、快適かつ機能的な執務空間をお求めの企業様にフィットします。

セキュリティ面では機械警備を導入。地下駐車場も備えており、車利用の多いテナント様にも対応可能です。

表参道・青山エリアの持つトレンド感と、ビジネスにふさわしい落ち着きを両立した好物件。
周辺環境・設備共にバランスの取れた、上質なオフィスビルをお探しの方におすすめです。

その他のおすすめ物件を見る

OTHER

日本橋本町東急ビルは、三越前駅徒歩3分、江戸桜通り沿いの角地に立地するオフィスビルです。
2004年築ながら、リニューアルや丁寧な管理により、現在でも高い美観を維持。
ガラス面とフレームを基調とした外観は、周辺の街並みに調和しつつ、品格ある存在感を放ちます。
隣接するコレド室町2・コレド室町をはじめ、商業・金融機能が集積した日本橋らしい利便性の高い環境が整っています。

2026.04.13 中央区

新宿通りと貝坂通りが交わる角地に佇む本物件。
オフィスとしての使いやすさは保ちながら、建物内外共にデザイン性が高く、この物件にしかない味わいがあります。

2025.12.01 千代田区

”京橋彩区”を構成するビルの一つとして誕生した本物件。
アートが融合する次世代ビルで次のステージへ誘います✨️

2025.11.11 中央区