賃貸オフィス東京.com

スタッフブログ

東京の賃貸オフィス・
賃貸事務所をお探しの方へ

徹底サポートのスタッフブログ

「クローバー芝公園」ビル周囲には手入れの行き届いた植栽🌳ひと目で上質な物件だと分かります。駅アクセスも良好!

クローバー芝公園のメイン画像

角地かつ間口が広いため、存在感も申し分ありません!
ビル周囲に施された植栽は手入れが行き届いており、ビルに入る前からその品性を感じることができます‥✨️

間取り図を見る

FLOOR MAP

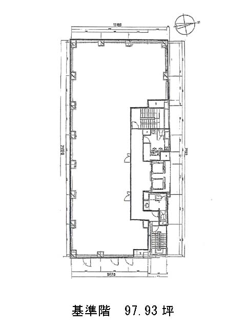
1フロア100坪弱の規模。コの字に近い間取りの無柱空間です。
OAフロアにより配線関係はすっきり収納可能✨️

その他の画像を見る

OTHER PHOTO
クローバー芝公園のエントランス エントランス
クローバー芝公園のエントランス エントランス
クローバー芝公園のエレベーター エレベーター

建物の基本情報

INFORMATION

名称クローバー芝公園

住所東京都港区芝公園1-3-12

竣工2006年2月

規模地上9階地下1階

構造SRC造

交通都営三田線「御成門駅」徒歩2分

設備等エレベーター2基・OAフロア・個別空調
男女別トイレ・機械警備・駐車場

終わりに

END

外観全面ガラス張りのスタイリッシュなオフィスビル。
石造りのエントランスはシンプルながら上質な印象で、ビルを囲うように施された植栽も相まってビルに入る前からその上質さが伺えます。
エントランスからエレベーターホールにかけては暖色系の柔らかなライティングにより、温かみのある雰囲気を演出。
基準階は約98坪で、コの字型に近い間取りが特徴。水回りは室外にまとめられているため、執務スペースのレイアウトは自由度高めです。
EVは2基、機械警備によるセキュリティ、駐車場も完備と、ビジネスニーズにしっかり応える仕様。最寄り駅からは徒歩2分とアクセスも良好で、来客対応や通勤面でも安心です。
落ち着いた環境とデザイン性を兼ね備えた、上質なワークプレイスをお探しの方におすすめの物件です。

その他のおすすめ物件を見る

OTHER

日本橋本町東急ビルは、三越前駅徒歩3分、江戸桜通り沿いの角地に立地するオフィスビルです。
2004年築ながら、リニューアルや丁寧な管理により、現在でも高い美観を維持。
ガラス面とフレームを基調とした外観は、周辺の街並みに調和しつつ、品格ある存在感を放ちます。
隣接するコレド室町2・コレド室町をはじめ、商業・金融機能が集積した日本橋らしい利便性の高い環境が整っています。

2026.04.13 中央区

新宿通りと貝坂通りが交わる角地に佇む本物件。
オフィスとしての使いやすさは保ちながら、建物内外共にデザイン性が高く、この物件にしかない味わいがあります。

2025.12.01 千代田区

”京橋彩区”を構成するビルの一つとして誕生した本物件。
アートが融合する次世代ビルで次のステージへ誘います✨️

2025.11.11 中央区