賃貸オフィス東京.com

スタッフブログ

東京の賃貸オフィス・
賃貸事務所をお探しの方へ

徹底サポートのスタッフブログ

「FORECAST亀戸」生活拠点としての機能が高い亀戸で、実力のあるオフィスビル🏢

FORECAST亀戸のメイン画像

最寄りの亀戸駅からは徒歩4分の距離。
亀戸二丁目交差点に面する角地かつ、建物1階に銀行支店が入居しているため視認性は確保されています。
間口も広く、しっかりとした存在感を感じることができるでしょう。

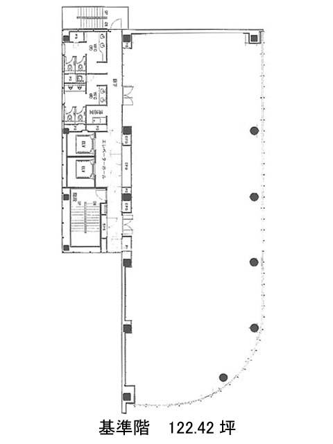
間取り図を見る

FLOOR MAP

約122坪という基準階面積は、十分な広さを確保しつつフロア全体を見渡しやすい規模。角地に立地しているため窓面が広く、自然光の恩恵を受けやすいのがうれしい設計です。
カーブを描く外壁部を活かし、受付やプレゼンテーションゾーンなど“顔になる”スペースを窓際に設けると印象もアップ。
水回りは室外共用部に設置されており、執務空間に干渉しません。

その他の画像を見る

OTHER PHOTO
FORECAST亀戸のエントランス エントランス
FORECAST亀戸のホール ホール
FORECAST亀戸のエレベーター エレベーター

建物の基本情報

INFORMATION

名称FORECAST亀戸

住所東京都江東区亀戸2-27-5

竣工2010年9月

規模地上8階地下1階

構造S造

交通各線「亀戸駅」徒歩4分

設備等エレベーター2基・OAフロア・個別空調
男女別トイレ・機械警備・駐車場

終わりに

END

亀戸二丁目交差点、ガラス張り角地で実現する新しい拠点づくり

JR・東武線「亀戸駅」から徒歩4分、明治通り沿いの角地に立つ「FORECAST亀戸ビル」。
2010年竣工、地上8階・地下1階建てと、程よい規模感ながら、ガラスファサード+角地立地で視認性・採光性ともに優れた存在感のあるオフィスビルです。

特徴的な外観は、緩やかにカーブを描くフォルムによって、明治通りの街並みに優しく溶け込みながらも“見られるオフィス”としてしっかり印象を残します。
1階には銀行支店が入居中で、来訪・店舗併用問わず安心の顔となっています。

基準階は約122坪。天井高2,700mm、床荷重500kg/㎡という仕様で、レイアウトの自由度も十分に確保。
無駄の少ない整った形状+窓面の確保によって、執務スペースだけでなくミーティングルームや来客ゾーンも設計しやすい構造です。
トイレ・給湯室は執務エリア外に設置されており、動線が整理されている点もポイントです。

さらに、立地的には亀戸という“生活・ビジネスが交差する街”ならではの厚みがあります。
駅徒歩圏・飲食店・コンビニ・商店街も豊富で、働く人の日常にリアルな利便をプラス。
大通り沿いの角地という立ち位置とあいまって、来訪者からの視認性も高く、企業としての拠点設計にも好条件です。

「規模は抑えたいけれど、利便と印象を両立したい」企業様、ぜひ亀戸という“隠れた選択肢”として、このビルを候補に加えてみてはいかがでしょうか。

その他のおすすめ物件を見る

OTHER

日本橋本町東急ビルは、三越前駅徒歩3分、江戸桜通り沿いの角地に立地するオフィスビルです。
2004年築ながら、リニューアルや丁寧な管理により、現在でも高い美観を維持。
ガラス面とフレームを基調とした外観は、周辺の街並みに調和しつつ、品格ある存在感を放ちます。
隣接するコレド室町2・コレド室町をはじめ、商業・金融機能が集積した日本橋らしい利便性の高い環境が整っています。

2026.04.13 中央区

新宿通りと貝坂通りが交わる角地に佇む本物件。
オフィスとしての使いやすさは保ちながら、建物内外共にデザイン性が高く、この物件にしかない味わいがあります。

2025.12.01 千代田区

”京橋彩区”を構成するビルの一つとして誕生した本物件。
アートが融合する次世代ビルで次のステージへ誘います✨️

2025.11.11 中央区