賃貸オフィス東京.com

スタッフブログ

東京の賃貸オフィス・
賃貸事務所をお探しの方へ

徹底サポートのスタッフブログ

「HATビル」赤坂駅徒歩1️⃣分以内!!駅出口斜向かいの好立地ビルです🏢

HATビルのメイン画像

千代田線「赤坂駅」7番出口斜向かいに建つ物件。
1階にはコンビニエンスストアが営業中で、物件をアナウンスする際の目印になります🏪

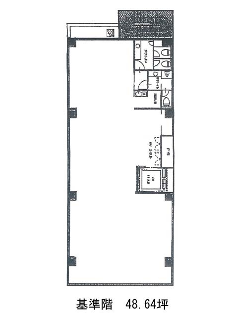
間取り図を見る

FLOOR MAP

基準階は約48.64坪のコンパクトなフロア。
水回りは貸室の一角にまとめて配置されており、レイアウトの自由度を確保しつつ動線を明確に保てる設計です。
エレベーターから室内へはダイレクトにアクセスができます。

その他の画像を見る

OTHER PHOTO
HATビルのエントランス エントランス
HATビルのエントランス エントランス
HATビルのエレベーター エレベーター

建物の基本情報

INFORMATION

名称HATビル

住所 東京都港区赤坂6-3-20

竣工2010年9月

規模地上9階

構造S造

交通東京メトロ千代田線「赤坂駅」徒歩1分

設備等エレベーター・OAフロア・個別空調
男女別トイレ・機械警備

終わりに

END

駅のすぐそば、オフィスのすぐそば。

赤坂駅の出口からほんの数十秒。通勤ストレスとは無縁の、駅チカ立地に構えるワンフロア型オフィス。
1階にはコンビニが営業しており、急な買い物やランチタイムにも便利な環境が整っています。

外観はベージュ系タイルを基調とした落ち着いたデザインで、周囲の街並みに自然に馴染みながら、しっかりとした存在感も演出。
エントランス周りにはダークブラウンの石材を取り入れ、高級感をプラスしています。

貸室は1フロア約48坪で、1テナント専有タイプ。
OAフロアや個別空調、機械警備といった基本設備も充実しており、コンパクトながら快適な執務環境が整っています。

赤坂エリアならではの落ち着いた雰囲気と、利便性を両立させたい方にはぜひチェックしていただきたい一棟です。

その他のおすすめ物件を見る

OTHER

日本橋本町東急ビルは、三越前駅徒歩3分、江戸桜通り沿いの角地に立地するオフィスビルです。
2004年築ながら、リニューアルや丁寧な管理により、現在でも高い美観を維持。
ガラス面とフレームを基調とした外観は、周辺の街並みに調和しつつ、品格ある存在感を放ちます。
隣接するコレド室町2・コレド室町をはじめ、商業・金融機能が集積した日本橋らしい利便性の高い環境が整っています。

2026.04.13 中央区

新宿通りと貝坂通りが交わる角地に佇む本物件。
オフィスとしての使いやすさは保ちながら、建物内外共にデザイン性が高く、この物件にしかない味わいがあります。

2025.12.01 千代田区

”京橋彩区”を構成するビルの一つとして誕生した本物件。
アートが融合する次世代ビルで次のステージへ誘います✨️

2025.11.11 中央区