賃貸オフィス東京.com

スタッフブログ

東京の賃貸オフィス・
賃貸事務所をお探しの方へ

徹底サポートのスタッフブログ

「茅場町ファーストビル」エリア内でも有数の大規模物件!クラシカルな佇まいが安定した魅力を放ちます✨️

茅場町ファーストビルのメイン画像

目の細かいブラウンタイル張りが飽きのこない外観デザイン。
周辺でもひときわ風格が漂います。

間取り図を見る

FLOOR MAP

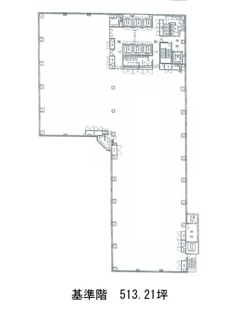
約513坪の広々としたL字型フロアは、エリア内でも希少な大型区画。
室内には一部柱が通っていますが、レイアウトの工夫次第で視線を遮る仕切りやゾーニングに活用することも可能です。
水回りは男女別トイレ・給湯室ともに共用部に集約されており、執務スペースをすっきり確保できる点も魅力。

その他の画像を見る

OTHER PHOTO
茅場町ファーストビルのエントランス エントランス
茅場町ファーストビルのホール ホール
茅場町ファーストビルのエレベーター エレベーター

建物の基本情報

INFORMATION

名称茅場町ファーストビル

住所東京都中央区新川1-17-1

竣工2002年4月

規模地上12階

構造S造

交通各線「茅場町駅」徒歩5分

設備等エレベーター6基・OAフロア・個別空調
男女別トイレ・機械警備・駐車場

終わりに

END

「茅場町ファーストビル」信頼をかたちにする、中央区の重厚な大型オフィス

東京メトロ日比谷線・東西線「茅場町」駅から徒歩5分。
中央区の中心に位置する「茅場町ファーストビル」は、1フロア500坪超のゆとりを誇る、エリア有数の大型オフィスビルです。
石張りの外観に、クラシカルなデザインのエントランスとエレベーターホール。まるで老舗ホテルを思わせる上質な空間が、来訪者にも好印象を与えます。

基準階は513.21坪のL字型無柱空間。部署を分けたレイアウトや、会議室・ラウンジの確保も自由度高く設計可能です。
機能性と快適性を兼ね備えたフロアは、働く環境へのこだわりにも応えてくれるはず。

茅場町という立地特性から、特に金融・証券・会計事務所やコンサルティング企業にフィットする環境。
また、信頼感ある住所を求めるスタートアップやIT企業にとっても、存在感ある拠点となるでしょう。
上質な空間と確かな立地を兼ね備えた「茅場町ファーストビル」、次なるビジネスの舞台としてぜひご検討ください♫

その他のおすすめ物件を見る

OTHER

日本橋本町東急ビルは、三越前駅徒歩3分、江戸桜通り沿いの角地に立地するオフィスビルです。
2004年築ながら、リニューアルや丁寧な管理により、現在でも高い美観を維持。
ガラス面とフレームを基調とした外観は、周辺の街並みに調和しつつ、品格ある存在感を放ちます。
隣接するコレド室町2・コレド室町をはじめ、商業・金融機能が集積した日本橋らしい利便性の高い環境が整っています。

2026.04.13 中央区

新宿通りと貝坂通りが交わる角地に佇む本物件。
オフィスとしての使いやすさは保ちながら、建物内外共にデザイン性が高く、この物件にしかない味わいがあります。

2025.12.01 千代田区

”京橋彩区”を構成するビルの一つとして誕生した本物件。
アートが融合する次世代ビルで次のステージへ誘います✨️

2025.11.11 中央区