賃貸オフィス東京.com

スタッフブログ

東京の賃貸オフィス・
賃貸事務所をお探しの方へ

徹底サポートのスタッフブログ

「ネクストサイト渋谷ビル」充実の設備環境と落ち着いた佇まい。渋谷の”大人な”物件です🏢

ネクストサイト渋谷ビルのメイン画像

大通りから少し奥まった立地の本物件。
渋谷エリアの利便性を享受しながらも、落ち着いたワーキングプレイスです。

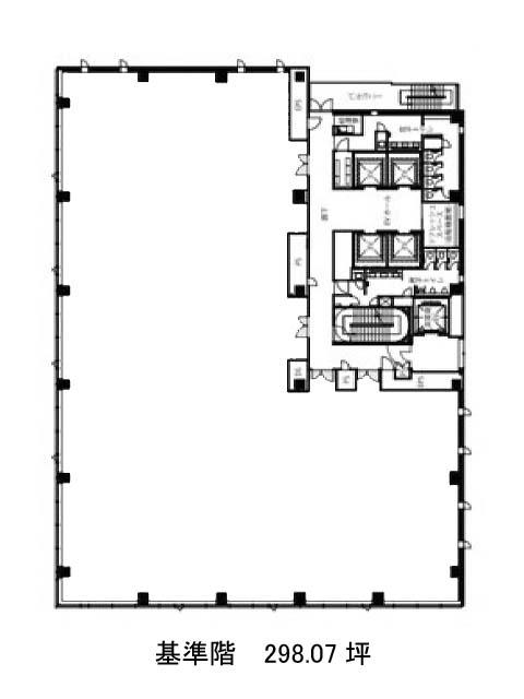
間取り図を見る

FLOOR MAP

基準階は298.07坪、整形の無柱空間でフレキシブルなレイアウトが可能です。窓面が広く、採光性にも優れた設計。
水回りやEVコアは西側にまとめられており、執務空間の効率的なゾーニングが可能。さらに空調や照明の制御も細かく調整でき、省エネと快適性の両立が図られた、機能性の高いフロアです。

その他の画像を見る

OTHER PHOTO
ネクストサイト渋谷ビルのエントランス エントランス
ネクストサイト渋谷ビルのエントランス エントランス
ネクストサイト渋谷ビルのホール ホール
ネクストサイト渋谷ビルのエレベーター エレベーター

建物の基本情報

INFORMATION

名称ネクストサイト渋谷ビル

住所東京都渋谷区渋谷2-12-12

竣工2016年5月

規模地上12階地下1階

構造S造・SRC造・RC造

交通各線「渋谷駅」徒歩9分

設備等エレベーター5基・OAフロア・個別空調
男女別トイレ・機械警備・駐車場

終わりに

END

スタイリッシュで機能的、渋谷駅圏の大型ビル

再開発が進む渋谷エリアで、落ち着いた雰囲気と高い機能性を兼ね備えたオフィスをお探しの方におすすめなのが「ネクストサイト渋谷ビル」。
JR「渋谷駅」から徒歩圏内に立地し、都心主要エリアへのスムーズなアクセスが可能です。
建物1階にはコンビニエンスストアが入居しており、日常的な利便性も高く、働く人にとって嬉しいポイントです。

建物外観はグレーとホワイトのツートンカラーで構成され、スタイリッシュながらも街並みにやさしくなじむ佇まい。
共用部には石調の上質なマテリアルが採用され、エントランスからエレベーターホールに至るまで、洗練された印象を与えてくれます。

執務フロアは約300坪の無柱空間で、フレキシブルなレイアウトに対応。また、グリッド型天井により間仕切り制限も少なく、柔軟な空間設計が可能です。
さらに、スマートフォンで照明を調整できるLED照明や、遮熱・断熱性能に優れたLow-Eガラスなど、省エネと快適性の両立が図られています。

災害時への備えも充実しており、共用部・専有部ともに最大48時間の非常用電源供給に対応。
制震ダンパーも二重に設けられ、地震時の安全性も確保されています。安心と快適性を兼ね備えた、これからの働き方を支えるオフィスビルです。

その他のおすすめ物件を見る

OTHER

日本橋本町東急ビルは、三越前駅徒歩3分、江戸桜通り沿いの角地に立地するオフィスビルです。
2004年築ながら、リニューアルや丁寧な管理により、現在でも高い美観を維持。
ガラス面とフレームを基調とした外観は、周辺の街並みに調和しつつ、品格ある存在感を放ちます。
隣接するコレド室町2・コレド室町をはじめ、商業・金融機能が集積した日本橋らしい利便性の高い環境が整っています。

2026.04.13 中央区

新宿通りと貝坂通りが交わる角地に佇む本物件。
オフィスとしての使いやすさは保ちながら、建物内外共にデザイン性が高く、この物件にしかない味わいがあります。

2025.12.01 千代田区

”京橋彩区”を構成するビルの一つとして誕生した本物件。
アートが融合する次世代ビルで次のステージへ誘います✨️

2025.11.11 中央区