賃貸オフィス東京.com

スタッフブログ

東京の賃貸オフィス・
賃貸事務所をお探しの方へ

徹底サポートのスタッフブログ

「PMO八丁堀Ⅲ」最寄り駅出口から道路を渡ってスグ!好アクセス・ハイスペックな物件**

PMO八丁堀Ⅲのメイン画像

八丁堀駅前交差点からすぐの物件です。ガラス張りの外観がスタイリッシュ。
角地のため、開放感と採光性、視認性に優れています!

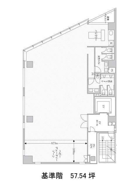
間取り図を見る

FLOOR MAP

1フロア1テナント仕様です。窓面がガラス張りで開放的。
ヘビーデューティゾーンが設けられているため、重量物の設置も安心です。

その他の画像を見る

OTHER PHOTO
PMO八丁堀Ⅲのエントランス エントランス
PMO八丁堀Ⅲのビルエントランス ビルエントランス
PMO八丁堀Ⅲのホール ホール

建物の基本情報

INFORMATION

名称PMO八丁堀Ⅲ

住所東京都中央区八丁堀3-18-6

竣工2018年5月

規模地上10階

構造S造(CFT造)

交通各線「八丁堀駅」徒歩2分

設備等エレベーター・OAフロア・個別空調
男女別トイレ・機械警備・駐車場

終わりに

END

PMO八丁堀Ⅲは、八丁堀駅から徒歩2分、駅前交差点すぐの角地に立地するオフィスビルです。
1フロア約57坪の貸室は1テナント仕様で、水回りを含めた設備がすべて専有部内に完結しており、プライバシー性・利便性ともに高水準。
パントリー横にはちょっとしたベンチスペースがあり、軽い打合せやリラックスの場としても活用できそうです。
スタイリッシュなエントランスや石張りの壁面が印象的で、来客対応の面でも好印象を残せる設計。
周辺にはコンビニや飲食店が点在し、日々の業務も快適にこなせます。

その他のおすすめ物件を見る

OTHER

日本橋本町東急ビルは、三越前駅徒歩3分、江戸桜通り沿いの角地に立地するオフィスビルです。
2004年築ながら、リニューアルや丁寧な管理により、現在でも高い美観を維持。
ガラス面とフレームを基調とした外観は、周辺の街並みに調和しつつ、品格ある存在感を放ちます。
隣接するコレド室町2・コレド室町をはじめ、商業・金融機能が集積した日本橋らしい利便性の高い環境が整っています。

2026.04.13 中央区

新宿通りと貝坂通りが交わる角地に佇む本物件。
オフィスとしての使いやすさは保ちながら、建物内外共にデザイン性が高く、この物件にしかない味わいがあります。

2025.12.01 千代田区

”京橋彩区”を構成するビルの一つとして誕生した本物件。
アートが融合する次世代ビルで次のステージへ誘います✨️

2025.11.11 中央区