賃貸オフィス東京.com

スタッフブログ

東京の賃貸オフィス・
賃貸事務所をお探しの方へ

徹底サポートのスタッフブログ

「PMO池袋」2駅が5分圏内🚇️池袋の利便性を享受できるハイグレードビルです!

PMO池袋のメイン画像

清潔感のあるガラスファサードが、周辺の植栽とよく合っています🌳✨️
外観から既に、ハイクオリティを感じる一棟です。

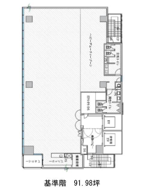
間取り図を見る

FLOOR MAP

基準階フロアは大型窓を備えた無柱整形空間で、グリーン大通り沿いの視線を十分に活用できるレイアウトとなっています。
コア部分(EV・階段・機械室・給湯・トイレ等)は壁背面に集約されており、執務エリアは広くフレキシブルに活用可能。
天井高2.8 m・OAフロア100 mm・床荷重500 kg/㎡の仕様は、ワークスタイルの変化にも対応しやすく、将来的な分割やゾーニング変更を視野に入れた設計がなされています。

その他の画像を見る

OTHER PHOTO
PMO池袋のエントランス エントランス
PMO池袋のエントランス エントランス
PMO池袋のエントランス エントランス
PMO池袋のエレベーター エレベーター

建物の基本情報

INFORMATION

名称PMO池袋

住所東京都豊島区東池袋1-25-10

竣工2023年5月

規模地上12階

構造S造(柱CFT)

交通東京メトロ有楽町線「東池袋駅」徒歩4分

設備等エレベーター2基・OAフロア・個別空調
男女別トイレ・機械警備・駐車場

終わりに

END

都市の熱を静かに抱く、池袋のプレミアム空間

東京の“北の玄関口”として多くの人が行き交う池袋エリア。
その中でも、ビジネス・商業・カルチャーが融合するグリーン大通り沿いに誕生したのが「PMO池袋」です。
池袋駅から徒歩5分という利便性を備えつつも、周囲は落ち着いたオフィス街の表情を見せ、まさに“ONとOFFのバランス”に優れた立地といえるでしょう。

本物件は、PMOシリーズならではの高いデザイン性と機能性が際立つオフィスビル。
建物のファサードにはガラスを多用し、都市的で洗練された印象を演出。企業のイメージ向上にも寄与します。

貸室フロアは整形無柱空間で、天井高はゆとりの2.8m。南向きの大型窓からは自然光が差し込み、明るく開放的なオフィス空間が広がります。
床荷重は500kg/㎡、OAフロア100mm、電気容量60VA/㎡(増設可)と、スペック面もハイグレード。
加えて、空調は6分割可能な個別制御式で、部署ごとの温度調整やゾーニングもしやすく、フレキシブルな働き方に対応します。
フロアにはバルコニーが設けられており、働く人の快適性やリフレッシュの観点で評価ポイントです。

また、エントランスや共用部には高品位な素材が使用されており、細部に至るまでグレード感を追求。
セキュリティは24時間有人管理+ICカード認証で万全です。

池袋の都市力、視認性の高い立地、そしてPMOクオリティの融合が生むこのオフィスは、企業の次なるステージにふさわしい舞台と言えるでしょう。
新たな価値を求めて拠点を構えるなら、ここ「PMO池袋」はぜひ注目していただきたい一棟です。

その他のおすすめ物件を見る

OTHER

日本橋本町東急ビルは、三越前駅徒歩3分、江戸桜通り沿いの角地に立地するオフィスビルです。
2004年築ながら、リニューアルや丁寧な管理により、現在でも高い美観を維持。
ガラス面とフレームを基調とした外観は、周辺の街並みに調和しつつ、品格ある存在感を放ちます。
隣接するコレド室町2・コレド室町をはじめ、商業・金融機能が集積した日本橋らしい利便性の高い環境が整っています。

2026.04.13 中央区

新宿通りと貝坂通りが交わる角地に佇む本物件。
オフィスとしての使いやすさは保ちながら、建物内外共にデザイン性が高く、この物件にしかない味わいがあります。

2025.12.01 千代田区

”京橋彩区”を構成するビルの一つとして誕生した本物件。
アートが融合する次世代ビルで次のステージへ誘います✨️

2025.11.11 中央区