賃貸オフィス東京.com

スタッフブログ

東京の賃貸オフィス・
賃貸事務所をお探しの方へ

徹底サポートのスタッフブログ

「PMO岩本町」岩本町の落ち着きと秋葉原の利便性の二面を享受できる物件

PMO岩本町のメイン画像

靖国通りから大門通りへ一本入った立地のため、ビル前は落ち着いた印象。
近隣に喫茶店があるほか、神田川を越えると秋葉原エリアに差し掛かり、更に利便性が広がります。

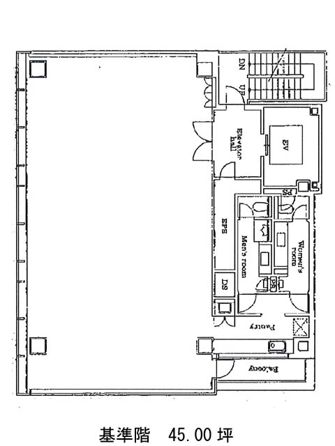
間取り図を見る

FLOOR MAP

約45坪の長方形型無柱空間は、使い勝手の良さが際立ちます。水回り(トイレ・給湯室等)は一箇所に集約されており、執務空間との動線が明確。
間仕切りしやすい構成のため、業種を問わずレイアウト自由度が高く、人数増減やレイアウト変更にも柔軟に対応できます。

その他の画像を見る

OTHER PHOTO
PMO岩本町のエントランス エントランス
PMO岩本町のエントランス エントランス
PMO岩本町のホール ホール
PMO岩本町のホール ホール

建物の基本情報

INFORMATION

名称PMO岩本町

住所東京都千代田区岩本町3-9-2

竣工2009年5月

規模地上8階

構造S造

交通都営新宿線「岩本町駅」徒歩2分

設備等エレベーター・OAフロア・個別空調
男女別トイレ・機械警備

周辺環境(ランチ・利便性・施設)を詳しく見る

SURROUNDING AREA
  • 買い物アイコン

    ローソン岩本町三丁目店

    距離:110m
  • 買い物アイコン

    まいばすけっと岩本町2丁目店

    距離:246m
  • 飲食店アイコン

    カフェ・ベローチェ岩本町店

    距離:88m
  • 飲食店アイコン

    すき家秋葉原駅岩本町店

    距離:208m
  • その他施設

    東神田郵便局

    距離:272m
  • 買い物アイコン

    アトレ秋葉原2

    距離:440m

終わりに

END

秋葉原も使える「PMO岩本町」45坪、機能美と信頼の空間

都営新宿線「岩本町」駅から徒歩2分、JR・東京メトロなど複数路線が利用可能な「秋葉原」駅も徒歩5分圏内という交通利便性に優れた《PMO岩本町》。
オフィスの信頼性と美しさを兼ね備えたPMOシリーズらしく、外観・共有部・専有部すべてにおいてハイグレードな品質が確保されています。

基準階は約45坪。1フロア1テナントの構成に加え、長方形の無柱空間+OAフロア設計により、レイアウトの自由度も高く、限られた面積の中で最大限の執務空間を確保できます。
また、水回りが室内の端にまとめられている点も、空間の効率的活用に一役買っています。

PMOシリーズならではのしっかりとしたEVホールやセキュリティ体制(機械警備・24時間入退館可)、空調は個別制御で、日々の業務を快適に支えてくれます。
周辺には飲食店やコンビニが点在し、すぐ足を延ばせば秋葉原エリアの賑わいも享受できる、働きやすさと利便性のバランスが取れた立地です。

さらに一部フロアには、打ち合わせスペースや家具などがあらかじめ整えられた「セットアップオフィス」もご用意。
スピード感ある移転・起業にも対応可能です(詳細は空室状況により異なりますのでご確認ください)。

その他のおすすめ物件を見る

OTHER

日本橋本町東急ビルは、三越前駅徒歩3分、江戸桜通り沿いの角地に立地するオフィスビルです。
2004年築ながら、リニューアルや丁寧な管理により、現在でも高い美観を維持。
ガラス面とフレームを基調とした外観は、周辺の街並みに調和しつつ、品格ある存在感を放ちます。
隣接するコレド室町2・コレド室町をはじめ、商業・金融機能が集積した日本橋らしい利便性の高い環境が整っています。

2026.04.13 中央区

新宿通りと貝坂通りが交わる角地に佇む本物件。
オフィスとしての使いやすさは保ちながら、建物内外共にデザイン性が高く、この物件にしかない味わいがあります。

2025.12.01 千代田区

”京橋彩区”を構成するビルの一つとして誕生した本物件。
アートが融合する次世代ビルで次のステージへ誘います✨️

2025.11.11 中央区