賃貸オフィス東京.com

スタッフブログ

東京の賃貸オフィス・
賃貸事務所をお探しの方へ

徹底サポートのスタッフブログ

「PMO西新宿」シリーズならではのハイスペック×西新宿駅至近の好立地物件🏢

PMO西新宿のメイン画像

最寄りの西新宿駅からすぐの立地。
駅出口からは青梅街道を直進するのみのシンプルな道順のため、初めて来訪する際もスムーズにアクセスが可能です♪

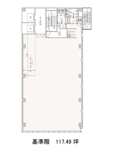
間取り図を見る

FLOOR MAP

基準階は117.49坪の整形フロア。柱の少ない無柱空間で、レイアウト効率に優れています。
柔軟なゾーニングにも対応でき、スタートアップから成長企業まで幅広いニーズにマッチします。

その他の画像を見る

OTHER PHOTO
PMO西新宿のエントランス エントランス
PMO西新宿のエントランス エントランス
PMO西新宿のホール ホール
PMO西新宿のホール ホール

建物の基本情報

INFORMATION

名称PMO西新宿

住所東京都新宿区西新宿8-1-2

竣工2019年6月

規模地上13階

構造S造

交通東京メトロ丸ノ内線「西新宿駅」徒歩2分

設備等エレベーター2基・OAフロア・個別空調
男女別トイレ・機械警備・駐車場

終わりに

END

空と街を映す、PMO西新宿の美意識

西新宿エリアで高スペックオフィスをお探しの方にご紹介したいのが、「PMO西新宿」です。
丸ノ内線「西新宿駅」からすぐ、さらにJR「新宿駅」や都営大江戸線「都庁前駅」へも好アクセスにあり、都内各方面へのアクセスに優れた立地。
青梅街道沿いの視認性にも優れたロケーションに建ち、全面ガラス張りのスタイリッシュなファサードがひときわ目を引きます。

エントランスに足を踏み入れると、洗練されたモダンな空間が広がり、企業の顔としてふさわしい品格を備えています。PMOシリーズならではの高いスペックも魅力。
事務所フロアの天井高は2,800mmとゆとりがあり、開放感のあるワークプレイスを実現します。OAフロアや個別空調、LED照明など、快適性と機能性を兼ね備えた設備環境も整っています。

また、セキュリティ面では24時間機械警備に加え、各階にカードリーダーを設置。入退館管理のスマート化が図られています。働きやすさと安心感の両立がなされた一棟です。

その他のおすすめ物件を見る

OTHER

日本橋本町東急ビルは、三越前駅徒歩3分、江戸桜通り沿いの角地に立地するオフィスビルです。
2004年築ながら、リニューアルや丁寧な管理により、現在でも高い美観を維持。
ガラス面とフレームを基調とした外観は、周辺の街並みに調和しつつ、品格ある存在感を放ちます。
隣接するコレド室町2・コレド室町をはじめ、商業・金融機能が集積した日本橋らしい利便性の高い環境が整っています。

2026.04.13 中央区

新宿通りと貝坂通りが交わる角地に佇む本物件。
オフィスとしての使いやすさは保ちながら、建物内外共にデザイン性が高く、この物件にしかない味わいがあります。

2025.12.01 千代田区

”京橋彩区”を構成するビルの一つとして誕生した本物件。
アートが融合する次世代ビルで次のステージへ誘います✨️

2025.11.11 中央区