「RBM築地スクエア」揺るがない品質のオフィスビル。バランスの取れた利便性も魅力です!
最寄りの八丁堀駅・新富町駅からは、大通りを一直線に進んでアクセスできる分かりやすい立地が魅力の一つです。
角地でビル自体の存在感もしっかりとしているため、視認性にも優れています!
賃貸オフィス東京.com
最寄りの八丁堀駅・新富町駅からは、大通りを一直線に進んでアクセスできる分かりやすい立地が魅力の一つです。
角地でビル自体の存在感もしっかりとしているため、視認性にも優れています!
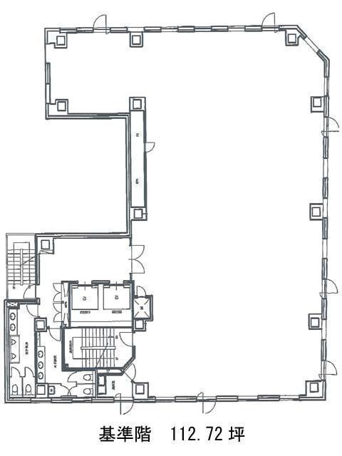
L字に近い整形フロアで、個室のレイアウトをしやすい構成。
エレベーターからの導線が分かりやすく、中央の広めの区画を執務室、突き出し部分を会議室や倉庫として活用するなど、ゾーニングの工夫が効きそうです。
こちらの物件の募集要項や賃料相場が気になる方は、
「RBM築地スクエア・賃貸オフィス東京.com」でご確認いただけます。
名称RBM築地スクエア
住所東京都中央区新富1-18-8
竣工2003年11月
規模地上9階地下1階
構造S造
交通各線「八丁堀駅」徒歩4分
設備等エレベーター2基・OAフロア・個別空調
男女別トイレ・機械警備・駐車場
会議室も応接もおまかせ。レイアウトしやすい築地の隠れ優等生
中央区築地エリアで、落ち着いたオフィス環境と利便性を両立したい企業に様におすすめな「RBM築地スクエア」。
東京メトロ有楽町線「新富町駅」、JR京葉線・東京メトロ日比谷線「八丁堀駅」から徒歩4分、東京メトロ日比谷線「築地駅」も徒歩6分と、3駅が利用可能なアクセスの良さも魅力です。
基準階は約113坪。L字に近い間取りが特徴で、会議室や応接室といった個室スペースを区分しやすく、ゾーニングの自由度も高め。複数部門が入居する企業にも使い勝手の良い構成です。
男女別トイレは室外に設けられており、執務空間との切り分けがしっかりと保たれています。
外観はベージュのタイル貼りで、大きなアーチ型のエントランスが印象的。オフィスビルでありながらどこか柔らかな雰囲気を漂わせています。
共用部も清潔感があり、落ち着いた石調の仕上げで統一感のある空間。エレベーターも2基備えており、フロア規模に対しての運用バランスも良好です。
周辺にはコンビニや飲食店が点在しており、ランチや急な買い物にも困りません。
華美すぎず、それでいてしっかり感のある「ちょうどいいオフィス」をお探しの企業にとって、RBM築地スクエアは安心して検討できる選択肢になりそうです。
2026.04.13 中央区
日本橋本町東急ビルは、三越前駅徒歩3分、江戸桜通り沿いの角地に立地するオフィスビルです。
2004年築ながら、リニューアルや丁寧な管理により、現在でも高い美観を維持。
ガラス面とフレームを基調とした外観は、周辺の街並みに調和しつつ、品格ある存在感を放ちます。
隣接するコレド室町2・コレド室町をはじめ、商業・金融機能が集積した日本橋らしい利便性の高い環境が整っています。
2026.04.13 中央区
新宿通りと貝坂通りが交わる角地に佇む本物件。
オフィスとしての使いやすさは保ちながら、建物内外共にデザイン性が高く、この物件にしかない味わいがあります。
2025.12.01 千代田区
”京橋彩区”を構成するビルの一つとして誕生した本物件。
アートが融合する次世代ビルで次のステージへ誘います✨️
2025.11.11 中央区