賃貸オフィス東京.com

スタッフブログ

東京の賃貸オフィス・
賃貸事務所をお探しの方へ

徹底サポートのスタッフブログ

「SK青山ビル」渋谷駅徒歩5分!1~2階には喫茶店も入居中の物件☕

SK青山ビルのメイン画像

宮益坂を登りきり、美竹通りに入った角地に佇む物件。
ガラス張りの外観と1-2階に入居中の喫茶店が目印です♪

間取り図を見る

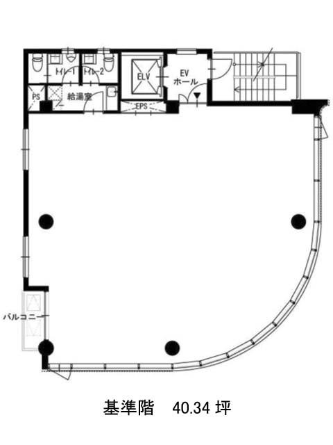
FLOOR MAP

緩やかにカーブを描く間取りが印象的。
1フロア1テナント仕様なので、占有性を保てます!

その他の画像を見る

OTHER PHOTO
SK青山ビルのエントランス エントランス
SK青山ビルのエントランスホール エントランスホール
SK青山ビルのエレベーター エレベーター

建物の基本情報

INFORMATION

名称SK青山ビル

住所東京都渋谷区渋谷1-6-5

竣工2016年4月

規模地上9階

構造S造

交通各線「渋谷駅」徒歩5分

設備等エレベーター・OAフロア・個別空調
男女別トイレ

終わりに

END

渋谷駅から徒歩5分、角地に佇むこちらのビルは、曲線を描くガラスファサードが印象的なスタイリッシュオフィス。
基準階は約40坪、1フロア1テナント仕様で、コンパクトながらも使い勝手のよい設計が魅力です。水回りはすべて室内にまとめられており、占有性の高さを確保。執務空間の自由度も高く、スタートアップや分室にもぴったりです。
貸室前にはしっかりとしたEVホールが備わっており、来客時にも落ち着いて対応可能。
さらに1・2階には喫茶店が入居しており、打ち合わせや休憩にも便利な環境です。

その他のおすすめ物件を見る

OTHER

日本橋本町東急ビルは、三越前駅徒歩3分、江戸桜通り沿いの角地に立地するオフィスビルです。
2004年築ながら、リニューアルや丁寧な管理により、現在でも高い美観を維持。
ガラス面とフレームを基調とした外観は、周辺の街並みに調和しつつ、品格ある存在感を放ちます。
隣接するコレド室町2・コレド室町をはじめ、商業・金融機能が集積した日本橋らしい利便性の高い環境が整っています。

2026.04.13 中央区

新宿通りと貝坂通りが交わる角地に佇む本物件。
オフィスとしての使いやすさは保ちながら、建物内外共にデザイン性が高く、この物件にしかない味わいがあります。

2025.12.01 千代田区

”京橋彩区”を構成するビルの一つとして誕生した本物件。
アートが融合する次世代ビルで次のステージへ誘います✨️

2025.11.11 中央区