賃貸オフィス東京.com

スタッフブログ

東京の賃貸オフィス・
賃貸事務所をお探しの方へ

徹底サポートのスタッフブログ

「田町第16藤島ビル」三田駅徒歩3分!コンパクトながら端正な存在感を放つオフィスビルです

田町第16藤島ビルのメイン画像

ガラス張りのファサード。
シャープな縦ラインとバルコニー部分のスクエアデザインが端正な印象です。

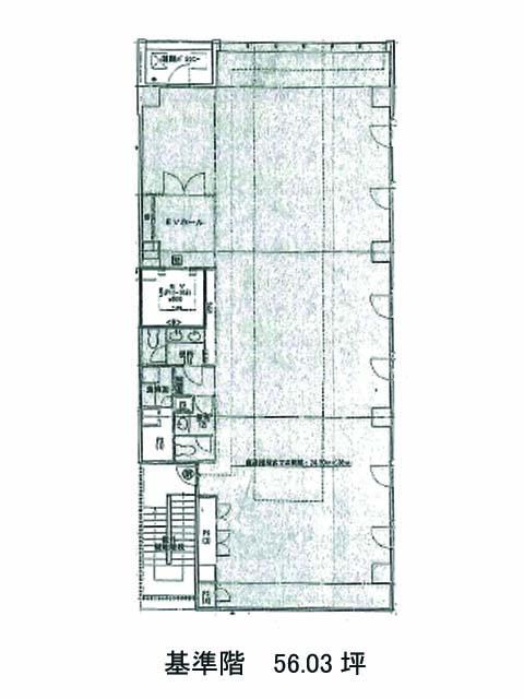
間取り図を見る

FLOOR MAP

基準階約56坪。1フロア1テナント仕様です。
水回りは室内に設置されており、占有性を確保しています。

その他の画像を見る

OTHER PHOTO
田町第16藤島ビルのエントランス エントランス
田町第16藤島ビルのエントランス エントランス
田町第16藤島ビルのエレベーター エレベーター

建物の基本情報

INFORMATION

名称田町第16藤島ビル

住所東京都港区芝4-13-4

竣工2016年10月

規模地上9階

構造S造

交通各線「三田駅」徒歩3分

設備等エレベーター・OAフロア・個別空調
男女別トイレ・機械警備・駐車場

終わりに

END

ー端正な佇まいと機能性を兼ね備えたオフィスビルー
大通り沿いに面した本物件は、ガラス張りの外観に縦ラインとスクエアバルコニーがアクセントとなり、洗練された印象を与えるスタイリッシュなオフィスビル。
コンパクトながらも機能性を追求した設計が特徴で、基準階は約56坪のワンフロア1テナント仕様。水回りは室内にまとまり、男女別トイレやOAフロア、個別空調、機械警備、さらに駐車場も完備されています。
天井高はゆとりのある2,800mm、ミニバルコニーからは都心の景色が望めます。清潔感のあるエントランスや、光沢感のあるグレー基調のエレベーターホールも、訪れる人に好印象を与えてくれるポイント。
企業の“顔”としても申し分のない、品のある一棟です✨️

その他のおすすめ物件を見る

OTHER

日本橋本町東急ビルは、三越前駅徒歩3分、江戸桜通り沿いの角地に立地するオフィスビルです。
2004年築ながら、リニューアルや丁寧な管理により、現在でも高い美観を維持。
ガラス面とフレームを基調とした外観は、周辺の街並みに調和しつつ、品格ある存在感を放ちます。
隣接するコレド室町2・コレド室町をはじめ、商業・金融機能が集積した日本橋らしい利便性の高い環境が整っています。

2026.04.13 中央区

新宿通りと貝坂通りが交わる角地に佇む本物件。
オフィスとしての使いやすさは保ちながら、建物内外共にデザイン性が高く、この物件にしかない味わいがあります。

2025.12.01 千代田区

”京橋彩区”を構成するビルの一つとして誕生した本物件。
アートが融合する次世代ビルで次のステージへ誘います✨️

2025.11.11 中央区