賃貸オフィス東京.com

スタッフブログ

東京の賃貸オフィス・
賃貸事務所をお探しの方へ

徹底サポートのスタッフブログ

「東京ビルディング」東京駅直結!!丸の内エリアを堂々と構成する一棟🏢

東京ビルディングのメイン画像

ソリッドなガラスファサードが美しく、東京駅周辺を構成するオフィスビルとしてふさわしい一棟。
東京駅直結の利便性は入居者・来訪者双方にとって大きなメリットでしょう。

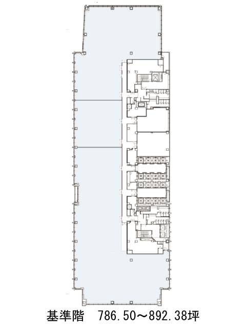
間取り図を見る

FLOOR MAP

本物件の基準階は約786〜892坪と都心でも有数の床面積を誇り、中央に集約されたEVホールと効率的な共用動線により、レイアウト自由度の高い整形空間が実現されています。
窓面が多く採光性にも優れ、かつ天井高もゆとりがあるため開放的な執務空間が広がります。
EVは43基を備え、来客・社員動線もスムーズです。視認性・拡張性・快適性を兼ね備えた、大規模オフィスの理想的なフロア構成と言えます。

その他の画像を見る

OTHER PHOTO
東京ビルディングのエントランス エントランス
東京ビルディングのエントランス エントランス
東京ビルディングのフロアマップ フロアマップ

建物の基本情報

INFORMATION

名称東京ビルディング

住所東京都千代田区丸の内2-7-3

竣工2005年10月

規模地上33階地下4階

構造S造(一部SRC造)

交通各線「東京駅」徒歩2分

設備等エレベーター43基・OAフロア・セントラル空調
男女別トイレ・機械警備・駐車場

周辺環境(ランチ・利便性・施設)を詳しく見る

SURROUNDING AREA
  • 買い物アイコン

    セブンイレブン丸の内東京ビル店

    距離:129m
  • 飲食店アイコン

    スターバックスコーヒーKITTE丸の内店

    距離:41m
  • 買い物アイコン

    無印良品MUJI to GO KITTE丸の内店

    距離:41m
  • その他施設

    銀座郵便局JPタワー内分室

    距離:170m
  • その他施設

    キッズスクウェア丸の内東京ビル

    距離:158m
  • 買い物アイコン

    ローソンKITTE丸の内店

    距離:115m

終わりに

END

東京駅直結×大規模フロア — 企業価値を高める立地。

「東京ビルディング」は、東京のビジネス拠点・丸の内に位置する大規模オフィスビルです。
東京都千代田区丸の内二丁目7-3というアドレスは、東京駅直結徒歩1〜3分の好立地。
東京メトロ有楽町駅、二重橋前駅、京橋駅、都営地下鉄日比谷駅など複数駅・複数路線も徒歩圏で利用でき、首都圏のビジネスネットワークを縦横に繋ぎます。

2005年10月に竣工されたこのビルは、地上33階・地下4階建て。
制震構造を採用し、震災時の揺れを吸収する安心性を備えながら、業務継続性(BCP)にも配慮された設計です。
基準階貸室面積は約786坪~892坪とワイドスケールで、大規模部署の入居やフロアまるごとの一括利用にも対応可能です。
各フロアにはOAフロアや高い床荷重など、先進オフィスの標準仕様が整えられています。
さらにはフロアごとにゾーニングされた空調システムといった快適性も整っており、企業活動を支えるワークプレイスとして優れたポテンシャルを発揮します。

エントランスを入れば、約6mを超える吹き抜け空間が広がり、来訪者を上質な空気感で迎えます。
管理体制は24時間有人管理・機械警備と高いセキュリティ水準を確保。

また、低層部・地下1階〜3階には「TOKIA(トキア)」と呼ばれる商業施設が展開されており、飲食店やサービス店舗が入居。
オフィスワーカーの昼夜の利便性も高く、仕事と生活を繋ぐ機能性も兼ね備えています。こうした複合的な利便性と大規模フロアの対応力が、東京ビルディングに独自性を与えています。

「東京駅」周辺の高層ビル群の一角として、都心ビジネスの拠点・ブランド拠点としてのポテンシャルを持つこの物件は、企業の本社移転や大規模オフィスのニーズに応える優れた選択肢です。

その他のおすすめ物件を見る

OTHER

日本橋本町東急ビルは、三越前駅徒歩3分、江戸桜通り沿いの角地に立地するオフィスビルです。
2004年築ながら、リニューアルや丁寧な管理により、現在でも高い美観を維持。
ガラス面とフレームを基調とした外観は、周辺の街並みに調和しつつ、品格ある存在感を放ちます。
隣接するコレド室町2・コレド室町をはじめ、商業・金融機能が集積した日本橋らしい利便性の高い環境が整っています。

2026.04.13 中央区

新宿通りと貝坂通りが交わる角地に佇む本物件。
オフィスとしての使いやすさは保ちながら、建物内外共にデザイン性が高く、この物件にしかない味わいがあります。

2025.12.01 千代田区

”京橋彩区”を構成するビルの一つとして誕生した本物件。
アートが融合する次世代ビルで次のステージへ誘います✨️

2025.11.11 中央区